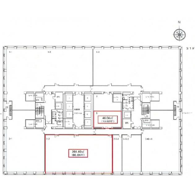
大阪駅前第3/31階 80.04坪 物件コード:C301103
- 電話で取り急ぎ物件情報を聞く
- 0120-366-200
- 物件コードを電話でお伝えください
物件コード:C301103


間取り図
おすすめポイント
- 各線梅田・大阪駅直結の大型ターミナルビル。基準階面積は500坪、事務所フロアの最小区画は約10坪とバリエーション豊富な提供が可能です。梅田中心部に位置しするのでフットワーク抜群、さまざまな業種のテナントが入居中。近年、大変人気のある物件です。
ストリートビューを表示 ▼
- この物件の賃料の価格帯(共益費込)
- @20,001円/坪~@30,000円/坪
大阪駅前第3のその他の募集階
|
続きを表示 ▼ |
賃料はこの物件の価格帯を表示しています。詳しい情報は電話・メールでお問い合わせください!
物件概要
| 物件名 | 大阪駅前第3 | ||
|---|---|---|---|
| 住所 | 大阪府大阪市北区梅田1丁目1番3号
梅田・南森町でよく検索されるその他の物件 |
||
| 構造 (規模) | 鉄骨鉄筋コンクリート造・鉄骨造陸屋根地上34階地下4階建 | ||
| 坪数 | 80.04坪 | 築年月 | 1979年9月1日 |
| 階数 | 31階 | 空調タイプ | 集中+個別 |
| 保証金 | - | ||
| 敷金 | 相談 | 礼金 | - |
| 沿線・最寄駅 |
地下鉄御堂筋線 梅田駅 徒歩3分 (梅田駅の賃貸事務所) 地下鉄四つ橋線 西梅田駅 徒歩2分 (西梅田駅の賃貸事務所) JR大阪環状線 大阪駅 徒歩4分 (大阪駅の賃貸事務所) |
||
| 設備詳細 |
|
||
| EV基数 | 14基 | 人荷EV基数 | 2基 |
| こだわり条件 |
|
||
| 備考 | |||
| アクセス | 新大阪駅まで電車10分 大阪駅梅田駅まで電車4分 関西空港まで電車57分、車45分 伊丹空港まで車20分 高速入口:環状線南森町・堂島入口 |
||
この物件の募集フロア
- この物件へのお問い合わせはこちら


〒541-0048
大阪市中央区瓦町3丁目4番3号
瓦町公洋ビル6階
TEL:06-6231-4600
FAX:06-6231-4630
- 電話で取り急ぎ物件情報を聞く

- 物件コード:C301103
- 物件コードを電話でお伝えください
類似物件のご紹介
「大阪駅前第3」とエリア、賃料、広さが類似した物件をご紹介しております。






