グロース北浜ビルディング(旧今川)/2階 43.28坪 物件コード:A102206
- 電話で取り急ぎ物件情報を聞く
- 0120-366-200
- 物件コードを電話でお伝えください
物件コード:A102206


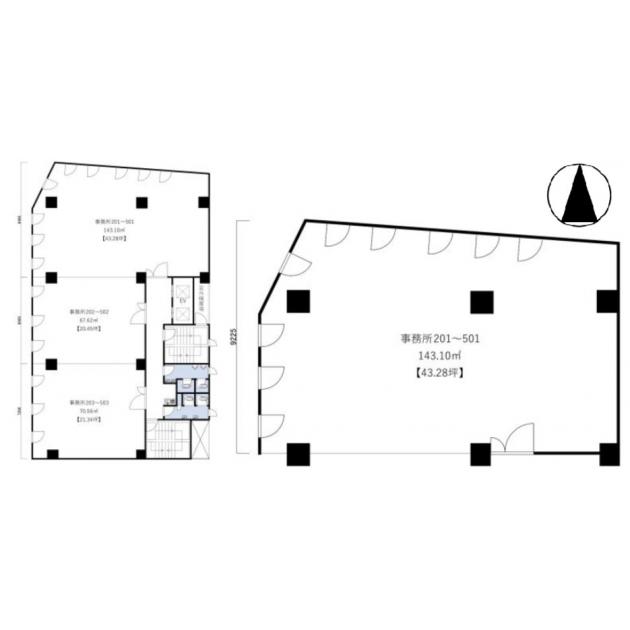
間取り図
おすすめポイント

- グロース北浜ビルディングは北浜駅徒歩2分、淀屋橋駅徒歩5分の立地に位置するビルです。各室すべて道路側なため採光が抜群です!!グレーのタイル張りの賃貸オフィスで、共用部は2018年にリニューアルしており、黒を基調としたシックな雰囲気になっています。1フロア85坪ですが約10坪位より分割可能なビルですので、様々にニーズに合わせられます。また、郵便局が目の前にあるため、非常に利便性が高いビルです。
ストリートビューを表示 ▼
- この物件の賃料の価格帯(共益費込)
- この部屋は成約済みです
グロース北浜ビルディング(旧今川)のその他の募集階
賃料はこの物件の価格帯を表示しています。詳しい情報は電話・メールでお問い合わせください!
物件概要
| 物件名 | グロース北浜ビルディング(旧今川) | ||
|---|---|---|---|
| 住所 | 大阪府大阪市中央区今橋2丁目2番17号 | ||
| 構造 (規模) | 鉄骨鉄筋コンクリート造地上9階地下1階建 | ||
| 坪数 | 43.28坪 | 築年月 | 1986年3月1日 |
| 階数 | 2階 | 空調タイプ | |
| 保証金 | - | ||
| 敷金 | - | 礼金 | - |
| 沿線・最寄駅 |
地下鉄堺筋線 北浜駅 徒歩2分 (北浜駅の賃貸事務所) 京阪線(本線・中之島線) 北浜駅 徒歩2分 (北浜駅の賃貸事務所) 地下鉄御堂筋線 淀屋橋駅 徒歩5分 (淀屋橋駅の賃貸事務所) |
||
| 設備詳細 |
|
||
| EV基数 | 2基 | 人荷EV基数 | - |
| こだわり条件 |
|
||
| 備考 | ・駅近・角ビル ・新耐震基準適合・各室全て道路側 ・2018年リニューアル済み |
||
| アクセス | 新大阪駅まで電車14分 大阪駅梅田駅まで電車10分 関西空港まで電車54分、車58分 伊丹空港まで車25分 高速入口:環状線高麗橋入口 |
||
この物件の募集フロア
グロース北浜ビルディング(旧今川)
- この物件へのお問い合わせはこちら


〒541-0048
大阪市中央区瓦町3丁目4番3号
瓦町公洋ビル6階
TEL:06-6231-4600
FAX:06-6231-4630
- 電話で取り急ぎ物件情報を聞く

- 物件コード:A102206
- 物件コードを電話でお伝えください
類似物件のご紹介
「グロース北浜ビルディング(旧今川)」とエリア、賃料、広さが類似した物件をご紹介しております。
住友ビルディング第2号館
- 大阪府大阪市中央区北浜4丁目7番28号
- 38坪(125.62m²)
- @12,001円/坪
~@15,000円/坪 -
地下鉄御堂筋線 淀屋橋駅 徒歩3分
京阪線(本線・中之島線) 淀屋橋駅 徒歩3分
堺筋北浜宗田
- 大阪府大阪市中央区今橋1丁目7番14号
- 48.18坪(159.27m²)
- @12,001円/坪
~@15,000円/坪 -
地下鉄堺筋線 北浜駅 徒歩1分
京阪線(本線・中之島線) 北浜駅 徒歩1分
淀屋橋竹村
- 大阪府大阪市中央区今橋4丁目5番20号
- 41.19坪(136.17m²)
- @12,001円/坪
~@15,000円/坪 -
地下鉄御堂筋線 淀屋橋駅 徒歩2分
京阪線(本線・中之島線) 淀屋橋駅 徒歩4分






