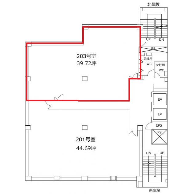
南星本館/2階 39.72坪 物件コード:A107408
- 電話で取り急ぎ物件情報を聞く
- 0120-366-200
- 物件コードを電話でお伝えください
物件コード:A107408


間取り図
おすすめポイント

- レンガ張りの外観が目を引くオフィスビル。御堂筋線淀屋橋駅・本町駅のちょうど真ん中に位置する便利な立地。基準階面積は100坪を超え北南どちら側にも採光が取れます。オーナーも入居しており、なにかあっても安心ですし、手入れの行き届いたオフィスです。
ストリートビューを表示 ▼
- この物件の賃料の価格帯(共益費込)
- @12,001円/坪~@15,000円/坪
南星本館のその他の募集階
賃料はこの物件の価格帯を表示しています。詳しい情報は電話・メールでお問い合わせください!
物件概要
| 物件名 | 南星本館 | ||
|---|---|---|---|
| 住所 | 大阪府大阪市中央区淡路町4丁目4番13号
淀屋橋・北浜・本町・堺筋本町でよく検索されるその他の物件 |
||
| 構造 (規模) | 鉄骨鉄筋コンクリート造地上11階地下1階建 | ||
| 坪数 | 39.72坪 | 築年月 | 1976年3月31日 |
| 階数 | 2階 | 空調タイプ | 個別 |
| 保証金 | 相談 | ||
| 敷金 | - | 礼金 | - |
| 沿線・最寄駅 |
地下鉄御堂筋線 本町駅 徒歩4分 (本町駅の賃貸事務所) 地下鉄御堂筋線 淀屋橋駅 徒歩5分 (淀屋橋駅の賃貸事務所) 地下鉄中央線 本町駅 徒歩6分 (本町駅の賃貸事務所) |
||
| 設備詳細 |
|
||
| EV基数 | 2基 | 人荷EV基数 | - |
| こだわり条件 |
|
||
| 備考 | |||
| アクセス | 新大阪駅まで電車15分 大阪駅梅田駅まで電車8分 関西空港まで電車52分、車46分 伊丹空港まで車23分 高速入口:環状線堂島・信濃橋・阿波座入口 |
||
この物件の募集フロア
- この物件へのお問い合わせはこちら


〒541-0048
大阪市中央区瓦町3丁目4番3号
瓦町公洋ビル6階
TEL:06-6231-4600
FAX:06-6231-4630
- 電話で取り急ぎ物件情報を聞く

- 物件コード:A107408
- 物件コードを電話でお伝えください
類似物件のご紹介
「南星本館」とエリア、賃料、広さが類似した物件をご紹介しております。
中博(ナカヒロ)
- 大阪府大阪市中央区博労町2丁目4番11号
- 46.887坪(155.00m²)
- @12,001円/坪
~@15,000円/坪 -
地下鉄堺筋線 堺筋本町駅 徒歩4分
地下鉄堺筋線 堺筋本町駅 徒歩4分
イワタニ第三(旧:大原)
- 大阪府大阪市中央区本町3丁目1番2号
- 31.95坪(105.62m²)
- @12,001円/坪
~@15,000円/坪 -
地下鉄堺筋線 堺筋本町駅 徒歩3分
地下鉄中央線 本町駅 徒歩3分
関電不動産船場(旧本町寺田)
- 大阪府大阪市中央区久太郎町2丁目5番31号
- 32.37坪(107.01m²)
- @12,001円/坪
~@15,000円/坪 -
地下鉄堺筋線 堺筋本町駅 徒歩2分
地下鉄中央線 堺筋本町駅 徒歩3分
大和今橋
- 大阪府大阪市中央区今橋2丁目2番11号
- 39.51坪(130.61m²)
- @12,001円/坪
~@15,000円/坪 -
地下鉄堺筋線 北浜駅 徒歩2分
京阪線(本線・中之島線) 北浜駅 徒歩3分
センバセントラル
- 大阪府大阪市中央区本町2丁目6番8号
- 32.25坪(106.61m²)
- @12,001円/坪
~@15,000円/坪 -
地下鉄堺筋線 堺筋本町駅 徒歩2分
地下鉄中央線 堺筋本町駅 徒歩3分






