あびこ駅前(旧日本生命我孫子)/1階 108.16坪 物件コード:N600701
- 電話で取り急ぎ物件情報を聞く
- 0120-366-200
- 物件コードを電話でお伝えください
物件コード:N600701
ストリートビューを表示 ▼
- この物件の賃料の価格帯(共益費込)
- この部屋は成約済みです
あびこ駅前(旧日本生命我孫子)のその他の募集階
|
|
賃料はこの物件の価格帯を表示しています。詳しい情報は電話・メールでお問い合わせください!
物件概要
| 物件名 | あびこ駅前(旧日本生命我孫子) | ||
|---|---|---|---|
| 住所 | 大阪府大阪市住吉区苅田7丁目12番32号 | ||
| 構造 (規模) | 鉄筋コンクリート造地上4階建 | ||
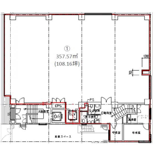
| 坪数 | 108.16坪 | 築年月 | 1982年10月31日 |
| 階数 | 1階 | 空調タイプ | 個別 |
| 保証金 | - | ||
| 敷金 | - | 礼金 | - |
| 沿線・最寄駅 | 地下鉄御堂筋線 | ||
| 設備詳細 |
|
||
| EV基数 | 2基 | 人荷EV基数 | - |
| こだわり条件 |
|
||
| 備考 | ・駅近・大通り沿い | ||
| アクセス | 新大阪駅まで電車32分 大阪駅梅田駅まで電車28分 関西空港まで電車53分、車47分 伊丹空港まで車36分 高速入口:阪神高速14号松原線 |
||
この物件の募集フロア
あびこ駅前(旧日本生命我孫子)
- この物件へのお問い合わせはこちら


〒541-0048
大阪市中央区瓦町3丁目4番3号
瓦町公洋ビル6階
TEL:06-6231-4600
FAX:06-6231-4630
- 電話で取り急ぎ物件情報を聞く

- 物件コード:N600701
- 物件コードを電話でお伝えください
類似物件のご紹介
「あびこ駅前(旧日本生命我孫子)」とエリア、賃料、広さが類似した物件をご紹介しております。
アクセス谷町
- 大阪府大阪市中央区谷町9丁目1番18号
- 87.1坪(287.93m²)
- @12,001円/坪
~@15,000円/坪 -
地下鉄千日前線 谷町九丁目駅 徒歩2分
地下鉄谷町線 谷町九丁目駅 徒歩2分
入商八木
- 大阪府大阪市中央区北浜2丁目3番9号
- 121.27坪(400.89m²)
- @12,001円/坪
~@15,000円/坪 -
地下鉄堺筋線 北浜駅 徒歩1分
京阪線(本線・中之島線) 北浜駅 徒歩1分
NORD+S南船場(ノードス)
- 大阪府大阪市中央区南船場3丁目10番5号
- 89.84坪(296.99m²)
- @12,001円/坪
~@15,000円/坪 -
地下鉄御堂筋線 心斎橋駅 徒歩3分
地下鉄長堀鶴見緑地線 心斎橋駅 徒歩3分
あべのベルタ
- 大阪府大阪市阿倍野区阿倍野筋3丁目10番1号
- 104.2坪(344.46m²)
- @12,001円/坪
~@15,000円/坪 -
近鉄線 大阪阿倍野橋駅 徒歩3分
地下鉄御堂筋線 天王寺駅 徒歩5分
センバセントラル
- 大阪府大阪市中央区本町2丁目6番8号
- 121.45坪(401.49m²)
- @12,001円/坪
~@15,000円/坪 -
地下鉄堺筋線 堺筋本町駅 徒歩2分
地下鉄中央線 堺筋本町駅 徒歩3分








