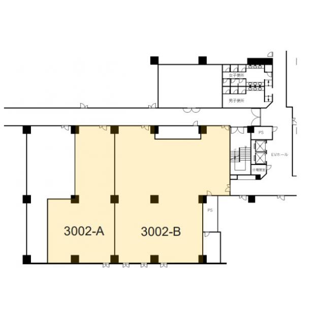
あべのベルタ/3階 104.2坪 物件コード:N301301
- 電話で取り急ぎ物件情報を聞く
- 0120-366-200
- 物件コードを電話でお伝えください
物件コード:N301301
ストリートビューを表示 ▼
- この物件の賃料の価格帯(共益費込)
- @12,001円/坪~@15,000円/坪
あべのベルタのその他の募集階
賃料はこの物件の価格帯を表示しています。詳しい情報は電話・メールでお問い合わせください!
物件概要
| 物件名 | あべのベルタ | ||
|---|---|---|---|
| 住所 | 大阪府大阪市阿倍野区阿倍野筋3丁目10番1号
天満橋・谷町でよく検索されるその他の物件 |
||
| 構造 (規模) | 鉄骨鉄筋コンクリート造地上7階地下4階建 | ||
| 坪数 | 104.2坪 | 築年月 | 1987年9月 |
| 階数 | 3階 | 空調タイプ | 集中 |
| 保証金 | - | ||
| 敷金 | 賃料の6カ月分 | 礼金 | - |
| 沿線・最寄駅 |
近鉄線 大阪阿倍野橋駅 徒歩3分 (大阪阿倍野橋駅の賃貸事務所) 地下鉄御堂筋線 天王寺駅 徒歩5分 (天王寺駅の賃貸事務所) JR大阪環状線 天王寺駅 徒歩7分 (天王寺駅の賃貸事務所) |
||
| 設備詳細 |
|
||
| EV基数 | 2基 | 人荷EV基数 | - |
| こだわり条件 |
|
||
| 備考 | |||
| アクセス | 新大阪駅まで電車30分 大阪駅梅田駅まで電車36分 関西空港まで電車41分、車45分 伊丹空港まで車35分 高速入口:阿倍野・文の里入口 |
||
この物件の募集フロア
あべのベルタ
- この物件へのお問い合わせはこちら


〒541-0048
大阪市中央区瓦町3丁目4番3号
瓦町公洋ビル6階
TEL:06-6231-4600
FAX:06-6231-4630
- 電話で取り急ぎ物件情報を聞く

- 物件コード:N301301
- 物件コードを電話でお伝えください
類似物件のご紹介
「あべのベルタ」とエリア、賃料、広さが類似した物件をご紹介しております。









