ORIX久太郎町/6階 44.2坪 物件コード:A201324
- 電話で取り急ぎ物件情報を聞く
- 0120-366-200
- 物件コードを電話でお伝えください
物件コード:A201324


おすすめポイント

- 心斎橋北商店街から少し東に入った場所に位置し、洗練されたデザインのエントランスや緑豊かな屋上庭園、オープンスペースが生み出す潤いが象徴的なビル。キーレス・カードレスの血流認証装置がストレスフリーなワークスペースを実現。
ストリートビューを表示 ▼
- この物件の賃料の価格帯(共益費込)
- @15,001円/坪~@20,000円/坪
ORIX久太郎町のその他の募集階
賃料はこの物件の価格帯を表示しています。詳しい情報は電話・メールでお問い合わせください!
物件概要
| 物件名 | ORIX久太郎町 | ||
|---|---|---|---|
| 住所 | 大阪府大阪市中央区久太郎町3丁目3番9号
本町・堺筋本町でよく検索されるその他の物件 |
||
| 構造 (規模) | 鉄骨造地上10階地下1階建 | ||
| 坪数 | 44.2坪 | 築年月 | 2008年1月1日 |
| 階数 | 6階 | 空調タイプ | 個別 |
| 保証金 | - | ||
| 敷金 | 賃料の12カ月分 | 礼金 | - |
| 沿線・最寄駅 |
地下鉄御堂筋線 本町駅 徒歩3分 (本町駅の賃貸事務所) 地下鉄中央線 本町駅 徒歩3分 (本町駅の賃貸事務所) 地下鉄堺筋線 堺筋本町駅 徒歩5分 (堺筋本町駅の賃貸事務所) |
||
| 設備詳細 |
|
||
| EV基数 | 1基 | 人荷EV基数 | 1基 |
| こだわり条件 |
|
||
| 備考 | |||
| アクセス | 新大阪駅まで電車15分 大阪駅梅田駅まで電車9分 関西空港まで電車50分、車45分 伊丹空港まで車20分 高速入口:環状線信濃橋・阿波座・長堀 |
||
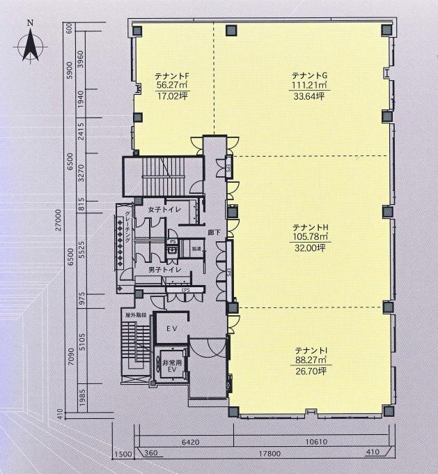
この物件の募集フロア
ORIX久太郎町
- この物件へのお問い合わせはこちら


〒541-0048
大阪市中央区瓦町3丁目4番3号
瓦町公洋ビル6階
TEL:06-6231-4600
FAX:06-6231-4630
- 電話で取り急ぎ物件情報を聞く

- 物件コード:A201324
- 物件コードを電話でお伝えください
類似物件のご紹介
「ORIX久太郎町」とエリア、賃料、広さが類似した物件をご紹介しております。
船場ダイヤモンド
- 大阪府大阪市中央区久太郎町2丁目1番30号
- 40.06坪(132.43m²)
- @15,001円/坪
~@20,000円/坪 -
地下鉄堺筋線 堺筋本町駅 徒歩1分
地下鉄中央線 堺筋本町駅 徒歩1分
大阪国際
- 大阪府大阪市中央区安土町2丁目3番13号
- 38.67坪(127.83m²)
- @15,001円/坪
~@20,000円/坪 -
地下鉄堺筋線 堺筋本町駅 徒歩1分
地下鉄中央線 堺筋本町駅 徒歩3分
YONEZAWA船場(旧YK)
- 大阪府大阪市中央区南久宝寺町2丁目3番6号
- 46.4坪(153.39m²)
- @15,001円/坪
~@20,000円/坪 -
地下鉄堺筋線 堺筋本町駅 徒歩3分
地下鉄中央線 堺筋本町駅 徒歩3分






