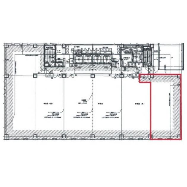
MPR本町/3階 40.82坪 物件コード:A203310
- 電話で取り急ぎ物件情報を聞く
- 0120-366-200
- 物件コードを電話でお伝えください
物件コード:A203310


おすすめポイント

- 大阪メトロ御堂筋線「本町駅」徒歩3分の立地に位置するビル。2009年に船場の中心に建った大型ビルでスタイリッシュな外観が目を引くオフィスビルです。エントランスの内装はグレーとシルバーを基調としており、共用部の内装はモノトーンを基調としています。室内には天井から床まで届く大きな窓が設けられているため、採光性に優れています。天井高は2,800mmで、床面はOAフロアに対応しています。
ストリートビューを表示 ▼
- この物件の賃料の価格帯(共益費込)
- @15,001円/坪~@20,000円/坪
MPR本町のその他の募集階
|
|
賃料はこの物件の価格帯を表示しています。詳しい情報は電話・メールでお問い合わせください!
物件概要
| 物件名 | MPR本町 | ||
|---|---|---|---|
| 住所 | 大阪府大阪市中央区南久宝寺町3丁目1番8号
本町・堺筋本町でよく検索されるその他の物件 |
||
| 構造 (規模) | 鉄骨鉄筋コンクリート造地下1階鉄骨造地上13階塔屋1階建 | ||
| 坪数 | 40.82坪 | 築年月 | 2009年7月1日 |
| 階数 | 3階 | 空調タイプ | 個別 |
| 保証金 | - | ||
| 敷金 | 賃料の10カ月分 | 礼金 | - |
| 沿線・最寄駅 |
地下鉄御堂筋線 本町駅 徒歩3分 (本町駅の賃貸事務所) 地下鉄中央線 本町駅 徒歩3分 (本町駅の賃貸事務所) 地下鉄御堂筋線 心斎橋駅 徒歩5分 (心斎橋駅の賃貸事務所) |
||
| 設備詳細 |
|
||
| EV基数 | 4基 | 人荷EV基数 | 1基 |
| こだわり条件 |
|
||
| 備考 | |||
| アクセス | 新大阪駅まで電車16分 大阪駅梅田駅まで電車10分 関西空港まで電車53分、車45分 伊丹空港まで車20分 高速入口:環状線信濃橋・阿波座・長堀 |
||
この物件の募集フロア
MPR本町
- この物件へのお問い合わせはこちら


〒541-0048
大阪市中央区瓦町3丁目4番3号
瓦町公洋ビル6階
TEL:06-6231-4600
FAX:06-6231-4630
- 電話で取り急ぎ物件情報を聞く

- 物件コード:A203310
- 物件コードを電話でお伝えください
類似物件のご紹介
「MPR本町」とエリア、賃料、広さが類似した物件をご紹介しております。
YONEZAWA船場(旧YK)
- 大阪府大阪市中央区南久宝寺町2丁目3番6号
- 46.4坪(153.39m²)
- @15,001円/坪
~@20,000円/坪 -
地下鉄堺筋線 堺筋本町駅 徒歩3分
地下鉄中央線 堺筋本町駅 徒歩3分
ORIX久太郎町
- 大阪府大阪市中央区久太郎町3丁目3番9号
- 44.2坪(146.12m²)
- @15,001円/坪
~@20,000円/坪 -
地下鉄御堂筋線 本町駅 徒歩3分
地下鉄中央線 本町駅 徒歩3分






