パークスタワー/8階 61.06坪 物件コード:F201208
- 電話で取り急ぎ物件情報を聞く
- 0120-366-200
- 物件コードを電話でお伝えください
物件コード:F201208


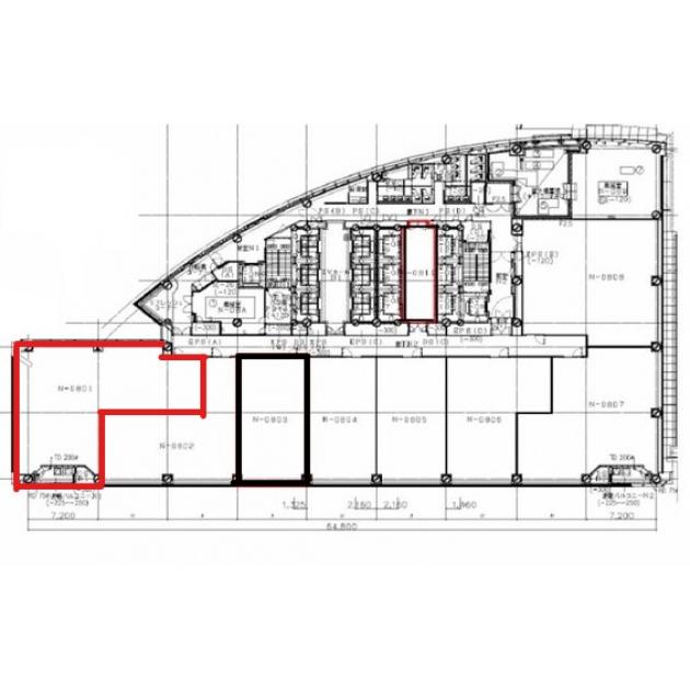
間取り図
おすすめポイント

- 大阪球場の跡地に南海電気鉄道が再開発を実施。六本木ヒルズを手がけたアメリカ人ジョンジャーディ(Joh Jerde)の設計。地球上の大渓谷に似せた建物の外観は雄大で、壁面は壮大な時間と地層を模している。
ストリートビューを表示 ▼
- この物件の賃料の価格帯(共益費込)
- クリニックフロア
パークスタワーのその他の募集階
賃料はこの物件の価格帯を表示しています。詳しい情報は電話・メールでお問い合わせください!
物件概要
| 物件名 | パークスタワー | ||
|---|---|---|---|
| 住所 | 大阪府大阪市浪速区難波中2丁目10番70号
なんば・日本橋でよく検索されるその他の物件 |
||
| 構造 (規模) | 鉄骨造・一部鉄骨鉄筋コンクリート造地上30階地下3階建 | ||
| 坪数 | 61.06坪 | 築年月 | 2003年8月1日 |
| 階数 | 8階 | 空調タイプ | 個別 |
| 保証金 | - | ||
| 敷金 | 賃料の12カ月分 | 礼金 | - |
| 沿線・最寄駅 |
地下鉄御堂筋線 なんば駅 徒歩5分 (なんば駅の賃貸事務所) 地下鉄千日前線 なんば駅 徒歩5分 (なんば駅の賃貸事務所) 地下鉄四つ橋線 なんば駅 徒歩6分 (なんば駅の賃貸事務所) |
||
| 設備詳細 |
|
||
| EV基数 | 12基 | 人荷EV基数 | 2基 |
| こだわり条件 |
|
||
| 備考 | ・8階はクリニックフロアです | ||
| アクセス | 新大阪駅まで電車22分 大阪駅梅田駅まで電車17分 関西空港まで電車47分、車40分 伊丹空港まで車20分 高速入口:環状線汐見橋・湊町入口 |
||
この物件の募集フロア
パークスタワー
部屋の詳細動画
パノラマビュー
- この物件へのお問い合わせはこちら


〒541-0048
大阪市中央区瓦町3丁目4番3号
瓦町公洋ビル6階
TEL:06-6231-4600
FAX:06-6231-4630
- 電話で取り急ぎ物件情報を聞く

- 物件コード:F201208
- 物件コードを電話でお伝えください
類似物件のご紹介
「パークスタワー」とエリア、賃料、広さが類似した物件をご紹介しております。
太陽生命難波
- 大阪府大阪市中央区難波2丁目1番2号
- 50.01坪(165.32m²)
- @12,001円/坪
~@15,000円/坪 -
地下鉄御堂筋線 なんば駅 徒歩1分
地下鉄千日前線 なんば駅 徒歩1分
千田センター
- 大阪府大阪市浪速区日本橋西1丁目1-10
- 64.74坪(214.02m²)
- @8,001円/坪
~@12,000円/坪 -
地下鉄堺筋線 恵美須町駅 徒歩6分
地下鉄御堂筋線 なんば駅 徒歩8分
太陽生命難波
- 大阪府大阪市中央区難波2丁目1番2号
- 50.01坪(165.32m²)
- @12,001円/坪
~@15,000円/坪 -
地下鉄御堂筋線 なんば駅 徒歩1分
地下鉄千日前線 なんば駅 徒歩1分






