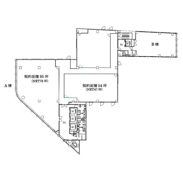
本町富士/8階 85坪 物件コード:B104156
- 電話で取り急ぎ物件情報を聞く
- 0120-366-200
- 物件コードを電話でお伝えください
物件コード:B104156
ストリートビューを表示 ▼
- この物件の賃料の価格帯(共益費込)
- 相談
本町富士のその他の募集階
賃料はこの物件の価格帯を表示しています。詳しい情報は電話・メールでお問い合わせください!
物件概要
| 物件名 | 本町富士 | ||
|---|---|---|---|
| 住所 | 大阪府大阪市西区靭本町1丁目4番12号
肥後橋・本町でよく検索されるその他の物件 |
||
| 構造 (規模) | 鉄骨鉄筋コンクリート造地上12階地下1階建 | ||
| 坪数 | 85坪 | 築年月 | 2000年4月30日 |
| 階数 | 8階 | 空調タイプ | 個別 |
| 保証金 | 相談 | ||
| 敷金 | - | 礼金 | - |
| 沿線・最寄駅 |
地下鉄四つ橋線 本町駅 徒歩1分 (本町駅の賃貸事務所) 地下鉄御堂筋線 本町駅 徒歩3分 (本町駅の賃貸事務所) 地下鉄中央線 本町駅 徒歩2分 (本町駅の賃貸事務所) |
||
| 設備詳細 |
|
||
| EV基数 | 4基 | 人荷EV基数 | - |
| こだわり条件 |
|
||
| 備考 | |||
| アクセス | 新大阪駅まで電車14分 大阪駅梅田駅まで電車8分 関西空港まで電車52分、車40分 伊丹空港まで車20分 高速入口:環状線信濃橋・阿波座入口 |
||
- この物件へのお問い合わせはこちら


〒541-0048
大阪市中央区瓦町3丁目4番3号
瓦町公洋ビル6階
TEL:06-6231-4600
FAX:06-6231-4630
- 電話で取り急ぎ物件情報を聞く

- 物件コード:B104156
- 物件コードを電話でお伝えください
類似物件のご紹介
「本町富士」とエリア、賃料、広さが類似した物件をご紹介しております。
アイデム西本町第2
- 大阪府大阪市西区西本町1丁目13番40号
- 78.05坪(258.02m²)
- @8,001円/坪
~@12,000円/坪 -
地下鉄四つ橋線 本町駅 徒歩3分
地下鉄中央線 本町駅 徒歩4分
江戸堀センター
- 大阪府大阪市西区江戸堀2丁目1番1号
- 75.57坪(249.82m²)
- @15,001円/坪
~@20,000円/坪 -
地下鉄四つ橋線 肥後橋駅 徒歩7分
京阪線(本線・中之島線) 中之島駅 徒歩7分
江戸堀フコク生命
- 大阪府大阪市西区江戸堀2丁目6番33号
- 86.57坪(286.18m²)
- @8,001円/坪
~@12,000円/坪 -
地下鉄四つ橋線 肥後橋駅 徒歩8分
地下鉄四つ橋線 本町駅 徒歩8分









