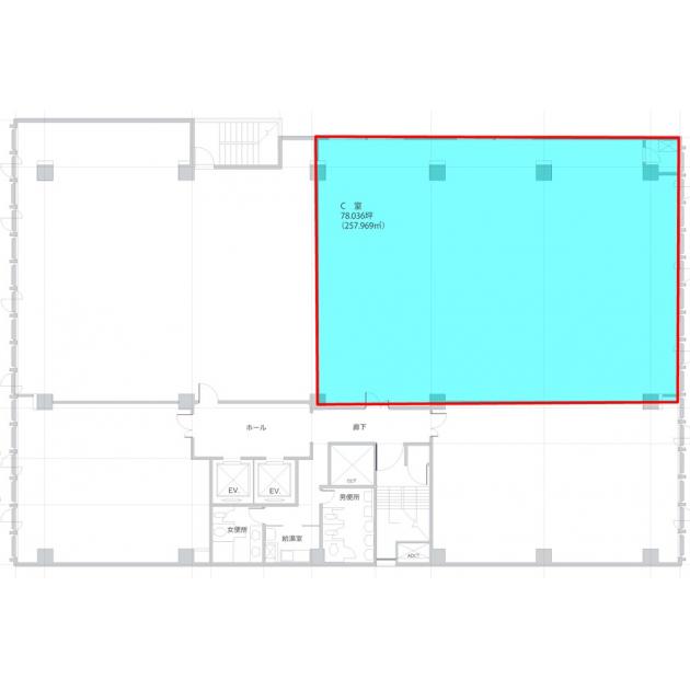
大阪建大/3階 78.036坪 物件コード:B105109
- 電話で取り急ぎ物件情報を聞く
- 0120-366-200
- 物件コードを電話でお伝えください
物件コード:B105109
ストリートビューを表示 ▼
- この物件の賃料の価格帯(共益費込)
- 相談
大阪建大のその他の募集階
|
|
賃料はこの物件の価格帯を表示しています。詳しい情報は電話・メールでお問い合わせください!
物件概要
| 物件名 | 大阪建大 | ||
|---|---|---|---|
| 住所 | 大阪府大阪市西区西本町1丁目3番15号
本町・堺筋本町・肥後橋・本町でよく検索されるその他の物件 |
||
| 構造 (規模) | 鉄骨鉄筋コンクリート造地上10階地下1階建 | ||
| 坪数 | 78.036坪 | 築年月 | 1977年1月1日 |
| 階数 | 3階 | 空調タイプ | 個別 |
| 保証金 | - | ||
| 敷金 | 相談 | 礼金 | - |
| 沿線・最寄駅 |
地下鉄四つ橋線 本町駅 徒歩1分 (本町駅の賃貸事務所) 地下鉄御堂筋線 本町駅 徒歩2分 (本町駅の賃貸事務所) 地下鉄中央線 本町駅 徒歩2分 (本町駅の賃貸事務所) |
||
| 設備詳細 |
|
||
| EV基数 | 2基 | 人荷EV基数 | - |
| こだわり条件 |
|
||
| 備考 | |||
| アクセス | 新大阪駅まで電車17分 大阪駅梅田駅まで電車12分 関西空港まで電車50分、車60分 伊丹空港まで車20分 高速入口:環状線信濃橋・阿波座 |
||
この物件の募集フロア
大阪建大
- この物件へのお問い合わせはこちら


〒541-0048
大阪市中央区瓦町3丁目4番3号
瓦町公洋ビル6階
TEL:06-6231-4600
FAX:06-6231-4630
- 電話で取り急ぎ物件情報を聞く

- 物件コード:B105109
- 物件コードを電話でお伝えください
類似物件のご紹介
「大阪建大」とエリア、賃料、広さが類似した物件をご紹介しております。
The Village Osaka(富士ソフト大阪)
- 大阪府大阪市中央区本町1丁目6番17号
- 90.83坪(300.26m²)
- @20,001円/坪
~@30,000円/坪 -
地下鉄堺筋線 堺筋本町駅 徒歩1分
地下鉄中央線 堺筋本町駅 徒歩3分
JRE堺筋本町(旧:堺筋本町第一生命)
- 大阪府大阪市中央区南本町1丁目8番14号
- 64.39坪(212.86m²)
- @15,001円/坪
~@20,000円/坪 -
地下鉄堺筋線 堺筋本町駅 徒歩1分
地下鉄中央線 堺筋本町駅 徒歩2分
セントピア堺筋本町
- 大阪府大阪市中央区南本町2丁目1番3号
- 85坪(280.99m²)
- @8,001円/坪
~@12,000円/坪 -
地下鉄堺筋線 堺筋本町駅 徒歩1分
地下鉄中央線 堺筋本町駅 徒歩1分









