三共梅田(旧大阪合同)/3階 27.41坪 物件コード:C208002
- 電話で取り急ぎ物件情報を聞く
- 0120-366-200
- 物件コードを電話でお伝えください
物件コード:C208002


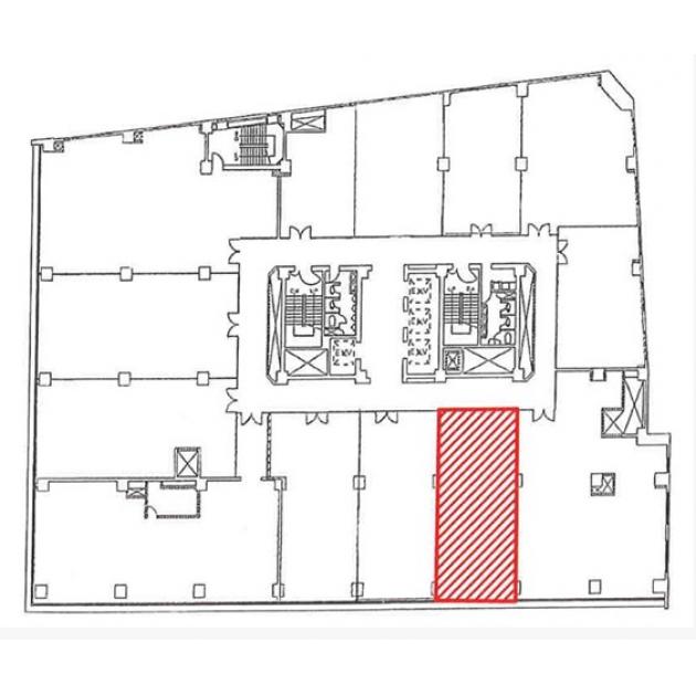
間取り図
おすすめポイント
- 透明感のあるクリアなガラス張りのエントランスとモダンな黒い外観がマッチしています。1、2階は物販飲食店フロアになっており、利便性の高いオフィスです。
ストリートビューを表示 ▼
- この物件の賃料の価格帯(共益費込)
- @12,001円/坪~@15,000円/坪
三共梅田(旧大阪合同)のその他の募集階
|
|
賃料はこの物件の価格帯を表示しています。詳しい情報は電話・メールでお問い合わせください!
物件概要
| 物件名 | 三共梅田(旧大阪合同) | ||
|---|---|---|---|
| 住所 | 大阪府大阪市北区堂山町1番5号
梅田・南森町でよく検索されるその他の物件 |
||
| 構造 (規模) | 鉄骨鉄筋コンクリート造地上9階地下2階 | ||
| 坪数 | 27.41坪 | 築年月 | 1965年8月1日 |
| 階数 | 3階 | 空調タイプ | 個別 |
| 保証金 | - | ||
| 敷金 | 賃料の10カ月分 | 礼金 | - |
| 沿線・最寄駅 |
地下鉄谷町線 東梅田駅 徒歩5分 (東梅田駅の賃貸事務所) 地下鉄御堂筋線 梅田駅 徒歩7分 (梅田駅の賃貸事務所) 地下鉄堺筋線 扇町駅 徒歩5分 (扇町駅の賃貸事務所) |
||
| 設備詳細 |
|
||
| EV基数 | 4基 | 人荷EV基数 | 1基 |
| こだわり条件 |
|
||
| 備考 | 扇町通りに面す大型ビル。2013年内外装フルリニューアル。館内郵便局あり、喫煙所、駐輪場、屋上にリフレッシュスペースあり。 | ||
| アクセス | 新大阪駅まで電車16分 大阪駅梅田駅まで電車10分 関西空港まで電車62分、車45分 伊丹空港まで車20分 高速入口:守口線扇町・環状線南森町入口 |
||
この物件の募集フロア
三共梅田(旧大阪合同)
- この物件へのお問い合わせはこちら


〒541-0048
大阪市中央区瓦町3丁目4番3号
瓦町公洋ビル6階
TEL:06-6231-4600
FAX:06-6231-4630
- 電話で取り急ぎ物件情報を聞く

- 物件コード:C208002
- 物件コードを電話でお伝えください
類似物件のご紹介
「三共梅田(旧大阪合同)」とエリア、賃料、広さが類似した物件をご紹介しております。
大阪JA
- 大阪府大阪市北区西天満1丁目2番5号
- 22.06坪(72.93m²)
- @12,001円/坪
~@15,000円/坪 -
地下鉄堺筋線 北浜駅 徒歩3分
京阪線(本線・中之島線) なにわ橋駅 徒歩5分
第一DH(旧:九鬼)
- 大阪府大阪市北区天満4丁目8番2号
- 29.44坪(97.32m²)
- @12,001円/坪
~@15,000円/坪 -
JR東西線 大阪天満宮駅 徒歩6分
地下鉄谷町線 南森町駅 徒歩7分
イトーピア扇町
- 大阪府大阪市北区天神橋4丁目7番13号
- 31.22坪(103.21m²)
- @12,001円/坪
~@15,000円/坪 -
地下鉄堺筋線 扇町駅 徒歩1分
地下鉄谷町線 天神橋筋六丁目駅 徒歩5分
イトーピア扇町
- 大阪府大阪市北区天神橋4丁目7番13号
- 31.22坪(103.21m²)
- @12,001円/坪
~@15,000円/坪 -
地下鉄堺筋線 扇町駅 徒歩1分
地下鉄谷町線 天神橋筋六丁目駅 徒歩5分
仮)天5テナント
- 大阪府大阪市北区天神橋5丁目3番10号
- 27坪(89.26m²)
- @12,001円/坪
~@15,000円/坪 -
地下鉄堺筋線 天神橋筋六丁目駅 徒歩2分
地下鉄谷町線 天神橋筋六丁目駅 徒歩2分






