シナジア芝田/3階 39.09坪 物件コード:C505215
- 電話で取り急ぎ物件情報を聞く
- 0120-366-200
- 物件コードを電話でお伝えください
物件コード:C505215


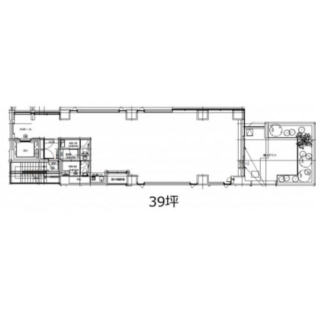
間取り図
おすすめポイント

- シナジア芝田は大阪メトロ御堂筋線「梅田駅」徒歩7分、JR大阪環状線「大阪駅」徒歩7分の立地に位置するビルです。
2025年に竣工したビルで、ワンフロアーワンテナントになっております。
3階は専用テラス付の部屋になりますので、解放感があります。
ストリートビューを表示 ▼
- この物件の賃料の価格帯(共益費込)
- @30,001円/坪以上
シナジア芝田のその他の募集階
賃料はこの物件の価格帯を表示しています。詳しい情報は電話・メールでお問い合わせください!
物件概要
| 物件名 | シナジア芝田 | ||
|---|---|---|---|
| 住所 | 大阪府大阪市北区芝田2丁目3番20号
梅田でよく検索されるその他の物件 |
||
| 構造 (規模) | 鉄筋コンクリート造地上8階 | ||
| 坪数 | 39.09坪 | 築年月 | 2025年7月 |
| 階数 | 3階 | 空調タイプ | |
| 保証金 | - | ||
| 敷金 | 賃料の1カ月分 | 礼金 | 賃料の3カ月分 |
| 沿線・最寄駅 |
地下鉄御堂筋線 梅田駅 徒歩7分 (梅田駅の賃貸事務所) JR大阪環状線 大阪駅 徒歩7分 (大阪駅の賃貸事務所) 地下鉄谷町線 東梅田駅 徒歩8分 (東梅田駅の賃貸事務所) |
||
| 設備詳細 |
|
||
| EV基数 | 1基 | 人荷EV基数 | - |
| こだわり条件 |
|
||
| 備考 | ・2025年7月に竣工したビル ・ワンフロアーワンテナント |
||
| アクセス | 新大阪駅まで電車8分 大阪駅梅田駅まで電車6分 関西空港まで電車60分、車45分 伊丹空港まで車20分 高速入口:阪神高速環状線梅田入口 |
||
この物件の募集フロア
- この物件へのお問い合わせはこちら


〒541-0048
大阪市中央区瓦町3丁目4番3号
瓦町公洋ビル6階
TEL:06-6231-4600
FAX:06-6231-4630
- 電話で取り急ぎ物件情報を聞く

- 物件コード:C505215
- 物件コードを電話でお伝えください
類似物件のご紹介
「シナジア芝田」とエリア、賃料、広さが類似した物件をご紹介しております。






