東邦第2ビル(旧第2BS)/2階 36.31坪 物件コード:A205222
- 電話で取り急ぎ物件情報を聞く
- 0120-366-200
- 物件コードを電話でお伝えください
物件コード:A205222


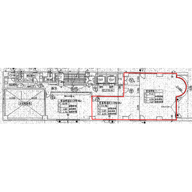
間取り図
おすすめポイント

- 石張りの外観が特徴の正統派オフィスビル。エントランスも白を基調とし清潔感に溢れています。エレベーターも2基あり、混雑も緩和。スタートアップ企業が使いたい10坪以下から約40坪までバリエーション豊富な貸室も魅力的です。
ストリートビューを表示 ▼
- この物件の賃料の価格帯(共益費込)
- @8,001円/坪~@12,000円/坪
東邦第2ビル(旧第2BS)のその他の募集階
賃料はこの物件の価格帯を表示しています。詳しい情報は電話・メールでお問い合わせください!
物件概要
| 物件名 | 東邦第2ビル(旧第2BS) | ||
|---|---|---|---|
| 住所 | 大阪府大阪市中央区南船場2丁目6番3号
心斎橋・長堀橋でよく検索されるその他の物件 |
||
| 構造 (規模) | 鉄骨鉄筋コンクリート造地上9階地下1階建 | ||
| 坪数 | 36.31坪 | 築年月 | 1988年1月1日 |
| 階数 | 2階 | 空調タイプ | 個別 |
| 保証金 | - | ||
| 敷金 | 賃料の3カ月分 | 礼金 | 賃料の1カ月分 |
| 沿線・最寄駅 |
地下鉄堺筋線 長堀橋駅 徒歩2分 (長堀橋駅の賃貸事務所) 地下鉄長堀鶴見緑地線 長堀橋駅 徒歩2分 (長堀橋駅の賃貸事務所) 地下鉄御堂筋線 心斎橋駅 徒歩5分 (心斎橋駅の賃貸事務所) |
||
| 設備詳細 |
|
||
| EV基数 | 2基 | 人荷EV基数 | - |
| こだわり条件 |
|
||
| 備考 | 300000 | ||
| アクセス | 新大阪駅まで電車18分 大阪駅梅田駅まで電車12分 関西空港まで電車50分、車50分 伊丹空港まで車25分 高速入口:環状線長堀入口 |
||
この物件の募集フロア
東邦第2ビル(旧第2BS)
- この物件へのお問い合わせはこちら


〒541-0048
大阪市中央区瓦町3丁目4番3号
瓦町公洋ビル6階
TEL:06-6231-4600
FAX:06-6231-4630
- 電話で取り急ぎ物件情報を聞く

- 物件コード:A205222
- 物件コードを電話でお伝えください
類似物件のご紹介
「東邦第2ビル(旧第2BS)」とエリア、賃料、広さが類似した物件をご紹介しております。
心斎橋アーバンコート(旧アートマスターズ心斎橋)
- 大阪府大阪市中央区西心斎橋1丁目15番13号
- 36.21坪(119.70m²)
- @8,001円/坪
~@12,000円/坪 -
地下鉄四つ橋線 四ツ橋駅 徒歩1分
地下鉄御堂筋線 心斎橋駅 徒歩3分
現代心斎橋
- 大阪府大阪市中央区南船場4丁目12番24号
- 42.27坪(139.74m²)
- @8,001円/坪
~@12,000円/坪 -
地下鉄御堂筋線 心斎橋駅 徒歩3分
地下鉄四つ橋線 四ツ橋駅 徒歩3分
心斎橋MS
- 大阪府大阪市中央区南船場4丁目6番22号
- 34.51坪(114.08m²)
- @8,001円/坪
~@12,000円/坪 -
地下鉄御堂筋線 心斎橋駅 徒歩2分
地下鉄長堀鶴見緑地線 心斎橋駅 徒歩2分
エイチツーオー第1
- 大阪府大阪市西区北堀江1丁目4番14号
- 37.9坪(125.29m²)
- @8,001円/坪
~@12,000円/坪 -
地下鉄四つ橋線 四ツ橋駅 徒歩1分
地下鉄御堂筋線 心斎橋駅 徒歩4分






