セントピア堺筋本町/5階 107.6坪 物件コード:A112202
- 電話で取り急ぎ物件情報を聞く
- 0120-366-200
- 物件コードを電話でお伝えください
物件コード:A112202


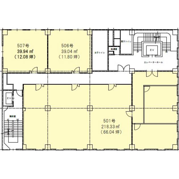
間取り図
おすすめポイント

- 堺筋に面し、「堺筋本町」駅徒歩1分、交差点角地に位置するレトロビル。1階玄関はリニューアル済みです。1階にドラッグストアが入居中のわかりやすいビルです。3年間の定期借家契約(再契約は相談可能)になります。基準階面積約100坪ですが、10坪台のコンパクトな貸室もご紹介できます。
ストリートビューを表示 ▼
- この物件の賃料の価格帯(共益費込)
- @8,001円/坪~@12,000円/坪
セントピア堺筋本町のその他の募集階
賃料はこの物件の価格帯を表示しています。詳しい情報は電話・メールでお問い合わせください!
物件概要
| 物件名 | セントピア堺筋本町 | ||
|---|---|---|---|
| 住所 | 大阪府大阪市中央区南本町2丁目1番3号
本町・堺筋本町でよく検索されるその他の物件 |
||
| 構造 (規模) | 鉄骨造地下1階地上8階建 | ||
| 坪数 | 107.6坪 | 築年月 | 1952年1月1日 |
| 階数 | 5階 | 空調タイプ | 集中+個別 |
| 保証金 | 総額9,684,000円(@90,000円/坪) | ||
| 敷金 | - | 礼金 | - |
| 沿線・最寄駅 |
地下鉄堺筋線 堺筋本町駅 徒歩1分 (堺筋本町駅の賃貸事務所) 地下鉄中央線 堺筋本町駅 徒歩1分 (堺筋本町駅の賃貸事務所) 地下鉄御堂筋線 本町駅 徒歩6分 (本町駅の賃貸事務所) |
||
| 設備詳細 |
|
||
| EV基数 | 2基 | 人荷EV基数 | - |
| こだわり条件 |
|
||
| 備考 | 定期借家契約(3年)、再契約可能 | ||
| アクセス | 新大阪駅まで電車18分 大阪駅梅田駅まで電車12分 関西空港まで電車50分、車47分 伊丹空港まで車20分 高速入口:環状線信濃橋・阿波座入口 |
||
この物件の募集フロア
セントピア堺筋本町
- この物件へのお問い合わせはこちら


〒541-0048
大阪市中央区瓦町3丁目4番3号
瓦町公洋ビル6階
TEL:06-6231-4600
FAX:06-6231-4630
- 電話で取り急ぎ物件情報を聞く

- 物件コード:A112202
- 物件コードを電話でお伝えください
類似物件のご紹介
「セントピア堺筋本町」とエリア、賃料、広さが類似した物件をご紹介しております。
セントピア御堂筋本町(旧カネセ)
- 大阪府大阪市中央区本町3丁目5番5号
- 92.28坪(305.06m²)
- @8,001円/坪
~@12,000円/坪 -
地下鉄御堂筋線 本町駅 徒歩1分
地下鉄中央線 本町駅 徒歩2分
トヤマ本館
- 大阪府大阪市中央区安土町1丁目7番13号
- 92.65坪(306.28m²)
- @8,001円/坪
~@12,000円/坪 -
地下鉄堺筋線 堺筋本町駅 徒歩1分
地下鉄中央線 堺筋本町駅 徒歩3分
リブラ南久宝寺町1号館(東館)
- 大阪府大阪市中央区南久宝寺町2丁目1番1号
- 102.57坪(339.07m²)
- @8,001円/坪
~@12,000円/坪 -
地下鉄堺筋線 堺筋本町駅 徒歩3分
地下鉄御堂筋線 本町駅 徒歩8分






