あいおいニッセイ同和損保御堂筋/6階 90.06坪 物件コード:A106319
- 電話で取り急ぎ物件情報を聞く
- 0120-366-200
- 物件コードを電話でお伝えください
物件コード:A106319


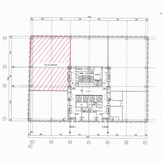
間取り図
共用部の動画
おすすめポイント

- 2005年築。御堂筋沿いの基準階325坪の大型ビル。ビルに平面駐車場と立体駐車場が併設され、2014年に貸会議室、喫煙所、リフレッシュルームが設置されたので立地だけではなく、設備面も満足して頂けると思います。また、貸室は天高3mと非常に高く、窓面も大きいので解放感があります。
ストリートビューを表示 ▼
- この物件の賃料の価格帯(共益費込)
- @20,001円/坪~@30,000円/坪
あいおいニッセイ同和損保御堂筋のその他の募集階
|
|
賃料はこの物件の価格帯を表示しています。詳しい情報は電話・メールでお問い合わせください!
物件概要
| 物件名 | あいおいニッセイ同和損保御堂筋 | ||
|---|---|---|---|
| 住所 | 大阪府大阪市中央区平野町3丁目6番1号
淀屋橋・北浜でよく検索されるその他の物件 |
||
| 構造 (規模) | 鉄骨造・地下鉄筋コンクリート造地上11階地下2階建 | ||
| 坪数 | 90.06坪 | 築年月 | 2005年4月1日 |
| 階数 | 6階 | 空調タイプ | 個別 |
| 保証金 | - | ||
| 敷金 | 賃料の12カ月分 | 礼金 | - |
| 沿線・最寄駅 |
地下鉄御堂筋線 淀屋橋駅 徒歩3分 (淀屋橋駅の賃貸事務所) 地下鉄御堂筋線 本町駅 徒歩4分 (本町駅の賃貸事務所) 京阪線(本線・中之島線) 淀屋橋駅 徒歩6分 (淀屋橋駅の賃貸事務所) |
||
| 設備詳細 |
|
||
| EV基数 | 4基 | 人荷EV基数 | - |
| こだわり条件 |
|
||
| 備考 | ・大通り沿い・角ビル ・新耐震基準適合・天井高3m ・OAフロア100mm・エレベーター4基 ・2014年会議室、喫煙所、リフレッシュコーナーなど増設 ・駐輪場有り・1階にカフェ有り |
||
| アクセス | 新大阪駅まで電車12分 大阪駅梅田駅まで電車6分 関西空港まで電車53分、車52分 伊丹空港まで車25分 高速入口:環状線高麗橋・信濃橋入口 |
||
この物件の募集フロア
あいおいニッセイ同和損保御堂筋
部屋の詳細動画
- この物件へのお問い合わせはこちら


〒541-0048
大阪市中央区瓦町3丁目4番3号
瓦町公洋ビル6階
TEL:06-6231-4600
FAX:06-6231-4630
- 電話で取り急ぎ物件情報を聞く

- 物件コード:A106319
- 物件コードを電話でお伝えください
類似物件のご紹介
「あいおいニッセイ同和損保御堂筋」とエリア、賃料、広さが類似した物件をご紹介しております。
武田御堂筋
- 大阪府大阪市中央区道修町4丁目1番1号
- 90.58坪(299.44m²)
- @20,001円/坪
~@30,000円/坪 -
地下鉄御堂筋線 淀屋橋駅 徒歩1分
地下鉄四つ橋線 肥後橋駅 徒歩4分






