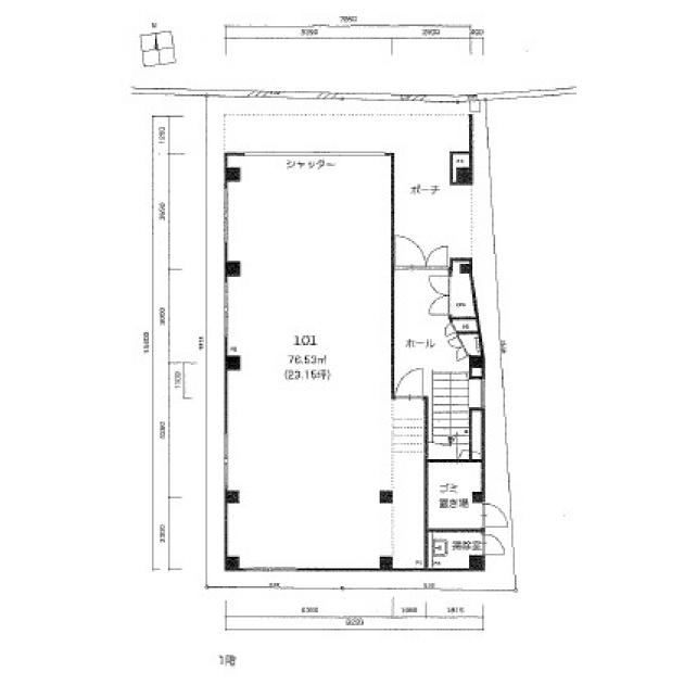
テンロクビルヂング/1階 23.2坪 物件コード:C408002
- 電話で取り急ぎ物件情報を聞く
- 0120-366-200
- 物件コードを電話でお伝えください
物件コード:C408002


ストリートビューを表示 ▼
- この物件の賃料の価格帯(共益費込)
- @8,001円/坪~@12,000円/坪
テンロクビルヂングのその他の募集階
賃料はこの物件の価格帯を表示しています。詳しい情報は電話・メールでお問い合わせください!
物件概要
| 物件名 | テンロクビルヂング | ||
|---|---|---|---|
| 住所 | 大阪府大阪市北区長柄中1丁目7番19号
南森町でよく検索されるその他の物件 |
||
| 構造 (規模) | 鉄骨造3階建 | ||
| 坪数 | 23.2坪 | 築年月 | 2024年12月 |
| 階数 | 1階 | 空調タイプ | 個別 |
| 保証金 | - | ||
| 敷金 | 賃料の6カ月分 | 礼金 | - |
| 沿線・最寄駅 |
地下鉄谷町線 天神橋筋六丁目駅 徒歩4分 (天神橋筋六丁目駅の賃貸事務所) 地下鉄堺筋線 天神橋筋六丁目駅 徒歩4分 (天神橋筋六丁目駅の賃貸事務所) |
||
| 設備詳細 |
|
||
| EV基数 | - | 人荷EV基数 | - |
| こだわり条件 |
|
||
| 備考 | |||
| アクセス | |||
- この物件へのお問い合わせはこちら


〒541-0048
大阪市中央区瓦町3丁目4番3号
瓦町公洋ビル6階
TEL:06-6231-4600
FAX:06-6231-4630
- 電話で取り急ぎ物件情報を聞く

- 物件コード:C408002
- 物件コードを電話でお伝えください
類似物件のご紹介
「テンロクビルヂング」とエリア、賃料、広さが類似した物件をご紹介しております。
SUCCESS BLD.
- 大阪府大阪市北区天満2丁目13番18号
- 19.45坪(64.30m²)
- @8,001円/坪
~@12,000円/坪 -
JR東西線 大阪天満宮駅 徒歩5分
地下鉄谷町線 天満橋駅 徒歩9分
エレガントビル大阪
- 大阪府大阪市北区天神橋6丁目6番11号
- 22.4坪(74.05m²)
- @8,001円/坪
~@12,000円/坪 -
地下鉄谷町線 天神橋筋六丁目駅 徒歩1分
地下鉄堺筋線 扇町駅 徒歩4分
エレガントビル南館
- 大阪府大阪市北区天神橋6丁目6番19号
- 20坪(66.12m²)
- @8,001円/坪
~@12,000円/坪 -
地下鉄谷町線 天神橋筋六丁目駅 徒歩1分
地下鉄堺筋線 扇町駅 徒歩5分
西天満(旧西天満ファイブ)
- 大阪府大阪市北区西天満5丁目16番3号
- 19.16坪(63.34m²)
- @8,001円/坪
~@12,000円/坪 -
地下鉄谷町線 南森町駅 徒歩3分
地下鉄堺筋線 南森町駅 徒歩3分






