吹田市末広町 貸テナント/1階~3階 125.04坪 物件コード:I501001
- 電話で取り急ぎ物件情報を聞く
- 0120-366-200
- 物件コードを電話でお伝えください
物件コード:I501001
ストリートビューを表示 ▼
- この物件の賃料の価格帯(共益費込)
- @3,000円/坪~@8,000円/坪
吹田市末広町 貸テナントのその他の募集階
|
|
賃料はこの物件の価格帯を表示しています。詳しい情報は電話・メールでお問い合わせください!
物件概要
| 物件名 | 吹田市末広町 貸テナント | ||
|---|---|---|---|
| 住所 | 大阪府吹田市末広町21番50号
江坂・千里中央・箕面でよく検索されるその他の物件 |
||
| 構造 (規模) | 鉄骨造陸屋根地上3階建 | ||
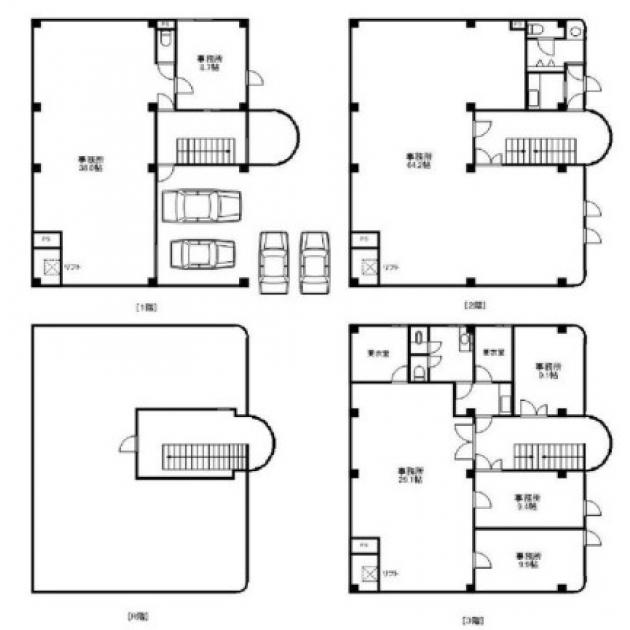
| 坪数 | 125.04坪 | 築年月 | 1989年5月 |
| 階数 | 1階~3階 | 空調タイプ | 個別 |
| 保証金 | - | ||
| 敷金 | 賃料の1カ月分 | 礼金 | 賃料の3カ月分 |
| 沿線・最寄駅 | |||
| 設備詳細 |
|
||
| EV基数 | - | 人荷EV基数 | - |
| こだわり条件 |
|
||
| 備考 | |||
| アクセス | |||
- この物件へのお問い合わせはこちら


〒541-0048
大阪市中央区瓦町3丁目4番3号
瓦町公洋ビル6階
TEL:06-6231-4600
FAX:06-6231-4630
- 電話で取り急ぎ物件情報を聞く

- 物件コード:I501001
- 物件コードを電話でお伝えください
類似物件のご紹介
「吹田市末広町 貸テナント」とエリア、賃料、広さが類似した物件をご紹介しております。








