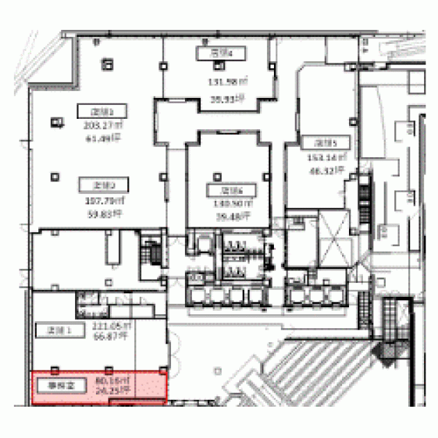
毎日インテシオ/2階 24.25坪 物件コード:C301305
- 電話で取り急ぎ物件情報を聞く
- 0120-366-200
- 物件コードを電話でお伝えください
物件コード:C301305


間取り図
おすすめポイント

- JR大阪駅などのターミナルと地下で直結するインテリジェントビル、ワンフロアは380坪。貸会議室・貸ホールも完備、震度7に耐える制震システム「アンボンドブレース」を採用するほか、屋上にはヘリポートを設置して災害に備えるなど、最大限の安心安全を提供するハイスペックオフィスです。
ストリートビューを表示 ▼
- この物件の賃料の価格帯(共益費込)
- @20,001円/坪~@30,000円/坪
毎日インテシオのその他の募集階
|
|
賃料はこの物件の価格帯を表示しています。詳しい情報は電話・メールでお問い合わせください!
物件概要
| 物件名 | 毎日インテシオ | ||
|---|---|---|---|
| 住所 | 大阪府大阪市北区梅田3丁目4番5号
西梅田・堂島・福島でよく検索されるその他の物件 |
||
| 構造 (規模) | 鉄骨鉄筋コンクリート造地上21階地下6階建 | ||
| 坪数 | 24.25坪 | 築年月 | 2007年7月1日 |
| 階数 | 2階 | 空調タイプ | 集中 |
| 保証金 | - | ||
| 敷金 | 賃料の12カ月分 | 礼金 | - |
| 沿線・最寄駅 |
地下鉄四つ橋線 西梅田駅 徒歩5分 (西梅田駅の賃貸事務所) JR東西線 北新地駅 徒歩5分 (北新地駅の賃貸事務所) JR大阪環状線 福島駅 徒歩5分 (福島駅の賃貸事務所) |
||
| 設備詳細 |
|
||
| EV基数 | 7基 | 人荷EV基数 | 1基 |
| こだわり条件 |
|
||
| 備考 | |||
| アクセス | 新大阪駅まで電車14分 大阪駅梅田駅まで電車8分 関西空港まで電車62分、車45分 伊丹空港まで車20分 高速入口:環状線梅田・堂島入口 |
||
この物件の募集フロア
毎日インテシオ
- この物件へのお問い合わせはこちら


〒541-0048
大阪市中央区瓦町3丁目4番3号
瓦町公洋ビル6階
TEL:06-6231-4600
FAX:06-6231-4630
- 電話で取り急ぎ物件情報を聞く

- 物件コード:C301305
- 物件コードを電話でお伝えください
類似物件のご紹介
「毎日インテシオ」とエリア、賃料、広さが類似した物件をご紹介しております。
中之島フェスティバルタワー
- 大阪府大阪市北区中之島2丁目3番18号
- 24.91坪(82.35m²)
- @20,001円/坪
~@30,000円/坪 -
地下鉄四つ橋線 西梅田駅 徒歩3分
地下鉄御堂筋線 淀屋橋駅 徒歩5分
コンフォリア・リヴ新梅田
- 大阪府大阪市福島区福島6丁目18番3号
- 19.65坪(64.96m²)
- @20,001円/坪
~@30,000円/坪 -
JR大阪環状線 福島駅 徒歩9分
JR東海道本線 大阪駅 徒歩11分
梅田スカイビルタワーウエスト
- 大阪府大阪市北区大淀中1丁目1番30号
- 26.15坪(86.45m²)
- @20,001円/坪
~@30,000円/坪 -
JR大阪環状線 大阪駅 徒歩6分
地下鉄御堂筋線 梅田駅 徒歩7分
中之島フェスティバルタワー
- 大阪府大阪市北区中之島2丁目3番18号
- 24.91坪(82.35m²)
- @20,001円/坪
~@30,000円/坪 -
地下鉄四つ橋線 西梅田駅 徒歩3分
地下鉄御堂筋線 淀屋橋駅 徒歩5分






