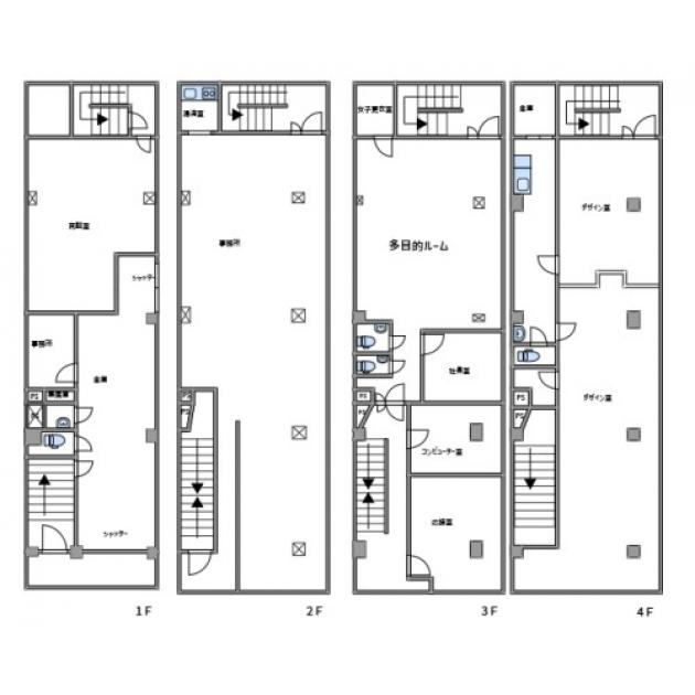
和泉町一棟/1階~4階 173.93坪 物件コード:A403203
- 電話で取り急ぎ物件情報を聞く
- 0120-366-200
- 物件コードを電話でお伝えください
物件コード:A403203
ストリートビューを表示 ▼
- この物件の賃料の価格帯(共益費込)
- @3,000円/坪~@8,000円/坪
和泉町一棟のその他の募集階
|
|
賃料はこの物件の価格帯を表示しています。詳しい情報は電話・メールでお問い合わせください!
物件概要
| 物件名 | 和泉町一棟 | ||
|---|---|---|---|
| 住所 | 大阪府大阪市中央区和泉町2丁目4番7号
本町・堺筋本町・天満橋・谷町でよく検索されるその他の物件 |
||
| 構造 (規模) | 鉄筋コンクリート造地上4階建 | ||
| 坪数 | 173.93坪 | 築年月 | 1966年4月 |
| 階数 | 1階~4階 | 空調タイプ | |
| 保証金 | - | ||
| 敷金 | - | 礼金 | 賃料の2カ月分 |
| 沿線・最寄駅 |
地下鉄堺筋線 堺筋本町駅 徒歩8分 (堺筋本町駅の賃貸事務所) |
||
| 設備詳細 |
|
||
| EV基数 | - | 人荷EV基数 | - |
| こだわり条件 |
|
||
| 備考 | |||
| アクセス | 新大阪駅まで電車31分 大阪駅梅田駅まで電車19分 関西空港まで電車62分、車42分 伊丹空港まで車21分 |
||
- この物件へのお問い合わせはこちら


〒541-0048
大阪市中央区瓦町3丁目4番3号
瓦町公洋ビル6階
TEL:06-6231-4600
FAX:06-6231-4630
- 電話で取り急ぎ物件情報を聞く

- 物件コード:A403203
- 物件コードを電話でお伝えください
類似物件のご紹介
「和泉町一棟」とエリア、賃料、広さが類似した物件をご紹介しております。








