平野町中央/3階 118.18坪 物件コード:A106322
- 電話で取り急ぎ物件情報を聞く
- 0120-366-200
- 物件コードを電話でお伝えください
物件コード:A106322


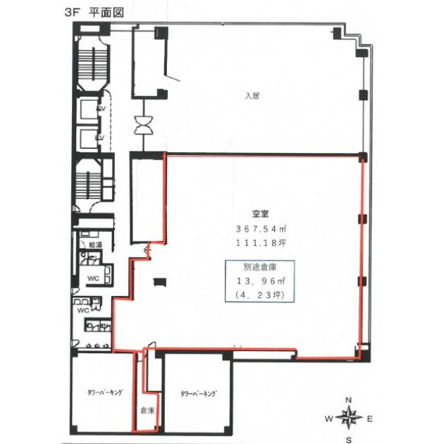
間取り図
おすすめポイント

- 御堂筋と堺筋のほぼ真ん中に位置する三休橋筋の角地に立地するビルです。基準階の貸室面積は約200坪ですが、最小20坪台から分割対応した部屋もあります。外観は高級感あるグレーのパネルと大理石調なので、来客にも好印象を与えます。
ストリートビューを表示 ▼
- この物件の賃料の価格帯(共益費込)
- @12,001円/坪~@15,000円/坪
平野町中央のその他の募集階
賃料はこの物件の価格帯を表示しています。詳しい情報は電話・メールでお問い合わせください!
物件概要
| 物件名 | 平野町中央 | ||
|---|---|---|---|
| 住所 | 大阪府大阪市中央区平野町3丁目2番13号
淀屋橋・北浜でよく検索されるその他の物件 |
||
| 構造 (規模) | 鉄骨鉄筋コンクリート造地上8階地下1階建 | ||
| 坪数 | 118.18坪 | 築年月 | 1990年5月1日 |
| 階数 | 3階 | 空調タイプ | 個別 |
| 保証金 | - | ||
| 敷金 | 賃料の10カ月分 | 礼金 | - |
| 沿線・最寄駅 |
地下鉄御堂筋線 淀屋橋駅 徒歩4分 (淀屋橋駅の賃貸事務所) 地下鉄堺筋線 北浜駅 徒歩6分 (北浜駅の賃貸事務所) 京阪線(本線・中之島線) 淀屋橋駅 徒歩6分 (淀屋橋駅の賃貸事務所) |
||
| 設備詳細 |
|
||
| EV基数 | 2基 | 人荷EV基数 | - |
| こだわり条件 |
|
||
| 備考 | ・角ビル・新耐震基準適合 ・天井高2500mm ・駐輪場有り |
||
| アクセス | 新大阪駅まで電車14分 大阪駅梅田駅まで電車8分 関西空港まで電車56分、車51分 伊丹空港まで車25分 高速入口:環状線高麗橋入口 |
||
この物件の募集フロア
平野町中央
- この物件へのお問い合わせはこちら


〒541-0048
大阪市中央区瓦町3丁目4番3号
瓦町公洋ビル6階
TEL:06-6231-4600
FAX:06-6231-4630
- 電話で取り急ぎ物件情報を聞く

- 物件コード:A106322
- 物件コードを電話でお伝えください
類似物件のご紹介
「平野町中央」とエリア、賃料、広さが類似した物件をご紹介しております。
大阪平和
- 大阪府大阪市中央区北浜1丁目5番5号
- 103.48坪(342.08m²)
- @12,001円/坪
~@15,000円/坪 -
地下鉄堺筋線 北浜駅 徒歩1分
京阪線(本線・中之島線) 北浜駅 徒歩1分
入商八木
- 大阪府大阪市中央区北浜2丁目3番9号
- 121.27坪(400.89m²)
- @12,001円/坪
~@15,000円/坪 -
地下鉄堺筋線 北浜駅 徒歩1分
京阪線(本線・中之島線) 北浜駅 徒歩1分
南星本館
- 大阪府大阪市中央区淡路町4丁目4番13号
- 101.25坪(334.71m²)
- @12,001円/坪
~@15,000円/坪 -
地下鉄御堂筋線 本町駅 徒歩4分
地下鉄御堂筋線 淀屋橋駅 徒歩5分
南星本館
- 大阪府大阪市中央区淡路町4丁目4番13号
- 101.25坪(334.71m²)
- @12,001円/坪
~@15,000円/坪 -
地下鉄御堂筋線 本町駅 徒歩4分
地下鉄御堂筋線 淀屋橋駅 徒歩5分
北浜センター
- 大阪府大阪市中央区東高麗橋1番12号
- 135.22坪(447.01m²)
- @12,001円/坪
~@15,000円/坪 -
地下鉄堺筋線 北浜駅 徒歩5分
京阪線(本線・中之島線) 北浜駅 徒歩5分
大阪朝日生命館
- 大阪府大阪市中央区高麗橋4丁目2番16号
- 105坪(347.11m²)
- @12,001円/坪
~@15,000円/坪 -
地下鉄御堂筋線 淀屋橋駅 徒歩1分
京阪線(本線・中之島線) 淀屋橋駅 徒歩2分






