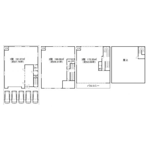
巽北事務所倉庫/1階~3階 172.97坪 物件コード:J203101
- 電話で取り急ぎ物件情報を聞く
- 0120-366-200
- 物件コードを電話でお伝えください
物件コード:J203101
ストリートビューを表示 ▼
- この物件の賃料の価格帯(共益費込)
- @3,000円/坪~@8,000円/坪
巽北事務所倉庫のその他の募集階
|
|
賃料はこの物件の価格帯を表示しています。詳しい情報は電話・メールでお問い合わせください!
物件概要
| 物件名 | 巽北事務所倉庫 | ||
|---|---|---|---|
| 住所 | 大阪府大阪市生野区巽北1丁目30番41号
でよく検索されるその他の物件 |
||
| 構造 (規模) | 鉄骨造地上3階建 | ||
| 坪数 | 172.97坪 | 築年月 | 1975年4月 |
| 階数 | 1階~3階 | 空調タイプ | 個別 |
| 保証金 | - | ||
| 敷金 | 賃料の3カ月分 | 礼金 | 賃料の2カ月分 |
| 沿線・最寄駅 | |||
| 設備詳細 |
|
||
| EV基数 | - | 人荷EV基数 | - |
| こだわり条件 |
|
||
| 備考 | |||
| アクセス | |||
- この物件へのお問い合わせはこちら


〒541-0048
大阪市中央区瓦町3丁目4番3号
瓦町公洋ビル6階
TEL:06-6231-4600
FAX:06-6231-4630
- 電話で取り急ぎ物件情報を聞く

- 物件コード:J203101
- 物件コードを電話でお伝えください
類似物件のご紹介
「巽北事務所倉庫」とエリア、賃料、広さが類似した物件をご紹介しております。
日新ビル
- 大阪府大阪市中央区島之内1丁目3番5号
- 138.93坪(459.27m²)
- @3,000円/坪
~@8,000円/坪 -
地下鉄堺筋線 長堀橋駅 徒歩7分
地下鉄長堀鶴見緑地線 長堀橋駅 徒歩7分
谷九夕陽丘
- 大阪府大阪市天王寺区生玉寺町3番32号
- 150坪(495.87m²)
- @3,000円/坪
~@8,000円/坪 -
地下鉄谷町線 四天王寺前夕陽ケ丘駅 徒歩3分
近鉄線 大阪上本町駅 徒歩13分
タカシマ第5
- 大阪府大阪市天王寺区勝山3丁目9番15号
- 163.35坪(540.00m²)
- @3,000円/坪
~@8,000円/坪 -
JR大阪環状線 桃谷駅 徒歩7分
JR大阪環状線 寺田町駅 徒歩10分
南久宝寺町2丁目一棟貸ビル
- 大阪府大阪市中央区南久宝寺町2丁目4番11号
- 170.36坪(563.17m²)
- @3,000円/坪
~@8,000円/坪 -
地下鉄中央線 堺筋本町駅 徒歩7分
地下鉄御堂筋線 本町駅 徒歩10分








