MH.4/1階 6.47坪 物件コード:B205425
- 電話で取り急ぎ物件情報を聞く
- 0120-366-200
- 物件コードを電話でお伝えください
物件コード:B205425
ストリートビューを表示 ▼
- この物件の賃料の価格帯(共益費込)
- @20,001円/坪~@30,000円/坪
MH.4のその他の募集階
賃料はこの物件の価格帯を表示しています。詳しい情報は電話・メールでお問い合わせください!
物件概要
| 物件名 | MH.4 | ||
|---|---|---|---|
| 住所 | 大阪府大阪市西区南堀江4丁目12番1号
四ツ橋・阿波座でよく検索されるその他の物件 |
||
| 構造 (規模) | 鉄骨造地上3階建 | ||
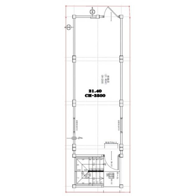
| 坪数 | 6.47坪 | 築年月 | 2025年5月末予定 |
| 階数 | 1階 | 空調タイプ | 個別 |
| 保証金 | - | ||
| 敷金 | 賃料の2カ月分 | 礼金 | 賃料の2カ月分 |
| 沿線・最寄駅 |
地下鉄千日前線 西長堀駅 徒歩6分 (西長堀駅の賃貸事務所) |
||
| 設備詳細 |
|
||
| EV基数 | - | 人荷EV基数 | - |
| こだわり条件 |
|
||
| 備考 | |||
| アクセス | 新大阪駅まで電車30分 大阪駅梅田駅まで電車23分 関西空港まで電車64分、車40分 伊丹空港まで車22分 高速入口:阪神高速 九条入口 |
||
この物件の募集フロア
MH.4
- この物件へのお問い合わせはこちら


〒541-0048
大阪市中央区瓦町3丁目4番3号
瓦町公洋ビル6階
TEL:06-6231-4600
FAX:06-6231-4630
- 電話で取り急ぎ物件情報を聞く

- 物件コード:B205425
- 物件コードを電話でお伝えください









