プロジェクト/7階 17.23坪 物件コード:D101301
- 電話で取り急ぎ物件情報を聞く
- 0120-366-200
- 物件コードを電話でお伝えください
物件コード:D101301


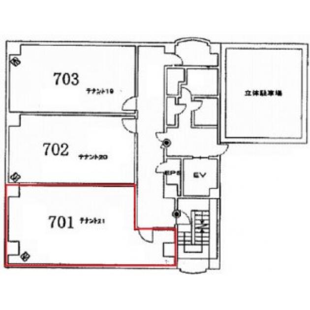
間取り図
おすすめポイント

- 阪急京都線の線路脇に建つオフィスビル、茶色い外観とガラスタイルのエントランスが特徴的です。線路脇なので目の前に遮るものがなく将来的にも採光が保証されています。基準階面積は約60坪、分割も可能で10坪台から40坪のバリエーション豊富な貸室の提供が可能。
ストリートビューを表示 ▼
- この物件の賃料の価格帯(共益費込)
- @8,001円/坪~@12,000円/坪
プロジェクトのその他の募集階
賃料はこの物件の価格帯を表示しています。詳しい情報は電話・メールでお問い合わせください!
物件概要
| 物件名 | プロジェクト | ||
|---|---|---|---|
| 住所 | 大阪府大阪市淀川区西中島3丁目1番4号
新大阪・西中島でよく検索されるその他の物件 |
||
| 構造 (規模) | 鉄骨造地上8階建 | ||
| 坪数 | 17.23坪 | 築年月 | 1991年1月1日 |
| 階数 | 7階 | 空調タイプ | 個別 |
| 保証金 | - | ||
| 敷金 | 賃料の6カ月分 | 礼金 | - |
| 沿線・最寄駅 |
地下鉄御堂筋線 西中島南方駅 徒歩5分 (西中島南方駅の賃貸事務所) 地下鉄御堂筋線 新大阪駅 徒歩10分 (新大阪駅の賃貸事務所) JR東海道本線 新大阪駅 徒歩10分 (新大阪駅の賃貸事務所) |
||
| 設備詳細 |
|
||
| EV基数 | 1基 | 人荷EV基数 | - |
| こだわり条件 |
|
||
| 備考 | |||
| アクセス | 新大阪駅まで電車5分 大阪駅梅田駅まで電車11分 関西空港まで電車64分、車50分 伊丹空港まで車20分 高速入口:11号線加島入口 |
||
この物件の募集フロア
プロジェクト
- この物件へのお問い合わせはこちら


〒541-0048
大阪市中央区瓦町3丁目4番3号
瓦町公洋ビル6階
TEL:06-6231-4600
FAX:06-6231-4630
- 電話で取り急ぎ物件情報を聞く

- 物件コード:D101301
- 物件コードを電話でお伝えください
類似物件のご紹介
「プロジェクト」とエリア、賃料、広さが類似した物件をご紹介しております。
第5新大阪
- 大阪府大阪市淀川区西中島3丁目12番15号
- 17.02坪(56.26m²)
- @8,001円/坪
~@12,000円/坪 -
地下鉄御堂筋線 西中島南方駅 徒歩2分
地下鉄御堂筋線 新大阪駅 徒歩7分
サムティフェイム新大阪2号館
- 大阪府大阪市淀川区西中島6丁目5番4号
- 18.67坪(61.72m²)
- @8,001円/坪
~@12,000円/坪 -
地下鉄御堂筋線 西中島南方駅 徒歩4分
地下鉄御堂筋線 新大阪駅 徒歩4分
天神第一
- 大阪府大阪市淀川区西中島4丁目2番26号
- 17.85坪(59.01m²)
- @8,001円/坪
~@12,000円/坪 -
地下鉄御堂筋線 西中島南方駅 徒歩1分
JR東海道本線 新大阪駅 徒歩6分
NLCセントラル
- 大阪府大阪市淀川区西中島4丁目3番21号
- 13.97坪(46.18m²)
- @8,001円/坪
~@12,000円/坪 -
地下鉄御堂筋線 西中島南方駅 徒歩1分
地下鉄御堂筋線 新大阪駅 徒歩5分
NLCセントラル
- 大阪府大阪市淀川区西中島4丁目3番21号
- 13.97坪(46.18m²)
- @8,001円/坪
~@12,000円/坪 -
地下鉄御堂筋線 西中島南方駅 徒歩1分
地下鉄御堂筋線 新大阪駅 徒歩5分






