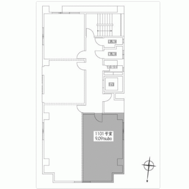
若杉グランドビル別館/11階 9.09坪 物件コード:C111126
- 電話で取り急ぎ物件情報を聞く
- 0120-366-200
- 物件コードを電話でお伝えください
物件コード:C111126
ストリートビューを表示 ▼
- この物件の賃料の価格帯(共益費込)
- この部屋は成約済みです
若杉グランドビル別館のその他の募集階
賃料はこの物件の価格帯を表示しています。詳しい情報は電話・メールでお問い合わせください!
物件概要
| 物件名 | 若杉グランドビル別館 | ||
|---|---|---|---|
| 住所 | 大阪府大阪市北区東天満1丁目11番15号 | ||
| 構造 (規模) | 鉄骨鉄筋コンクリート造地上13階建 | ||
| 坪数 | 9.09坪 | 築年月 | 1987年3月1日 |
| 階数 | 11階 | 空調タイプ | 個別 |
| 保証金 | - | ||
| 敷金 | - | 礼金 | - |
| 沿線・最寄駅 |
地下鉄谷町線 南森町駅 徒歩2分 (南森町駅の賃貸事務所) 地下鉄堺筋線 南森町駅 徒歩2分 (南森町駅の賃貸事務所) JR東西線 大阪天満宮駅 徒歩1分 (大阪天満宮駅の賃貸事務所) |
||
| 設備詳細 |
|
||
| EV基数 | 1基 | 人荷EV基数 | - |
| こだわり条件 |
|
||
| 備考 | |||
| アクセス | 新大阪駅まで電車17分 大阪駅梅田駅まで電車11分 関西空港まで電車55分、車45分 伊丹空港まで車20分 高速入口:環状線南森町・扇町入口 |
||
この物件の募集フロア
若杉グランドビル別館
- この物件へのお問い合わせはこちら


〒541-0048
大阪市中央区瓦町3丁目4番3号
瓦町公洋ビル6階
TEL:06-6231-4600
FAX:06-6231-4630
- 電話で取り急ぎ物件情報を聞く

- 物件コード:C111126
- 物件コードを電話でお伝えください
類似物件のご紹介
「若杉グランドビル別館」とエリア、賃料、広さが類似した物件をご紹介しております。
若杉グランドビル本館
- 大阪府大阪市北区天神橋2丁目5番25号
- 9.6坪(31.74m²)
- @12,001円/坪
~@15,000円/坪 -
地下鉄谷町線 南森町駅 徒歩1分
地下鉄堺筋線 南森町駅 徒歩1分
ラ・オカシオン(旧国道)
- 大阪府大阪市北区曽根崎2丁目1番12号
- 10.32坪(34.12m²)
- @12,001円/坪
~@15,000円/坪 -
地下鉄御堂筋線 梅田駅 徒歩6分
地下鉄谷町線 東梅田駅 徒歩4分








