パレロワイヤル順慶町/3階 17.92坪 物件コード:A205161
- 電話で取り急ぎ物件情報を聞く
- 0120-366-200
- 物件コードを電話でお伝えください
物件コード:A205161


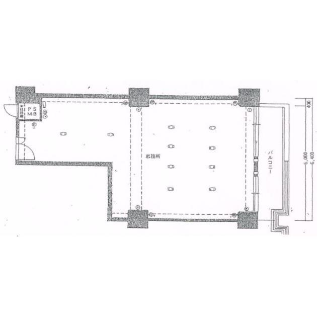
間取り図
おすすめポイント

- 堺筋に面する。赤茶色のタイル張りが特徴的な分譲オフィス。室内にトイレ、水回りがる貸室が多く、業種によっては店舗も相談可能ですので、一度お問い合わせ下さい。
ストリートビューを表示 ▼
- この物件の賃料の価格帯(共益費込)
- @3,000円/坪~@8,000円/坪
パレロワイヤル順慶町のその他の募集階
賃料はこの物件の価格帯を表示しています。詳しい情報は電話・メールでお問い合わせください!
物件概要
| 物件名 | パレロワイヤル順慶町 | ||
|---|---|---|---|
| 住所 | 大阪府大阪市中央区南船場1丁目16番23号
心斎橋・長堀橋でよく検索されるその他の物件 |
||
| 構造 (規模) | 鉄骨鉄筋コンクリート造地上14階地下2階 | ||
| 坪数 | 17.92坪 | 築年月 | 1981年5月1日 |
| 階数 | 3階 | 空調タイプ | 個別 |
| 保証金 | - | ||
| 敷金 | - | 礼金 | 賃料の2カ月分 |
| 沿線・最寄駅 |
地下鉄堺筋線 長堀橋駅 徒歩2分 (長堀橋駅の賃貸事務所) 地下鉄長堀鶴見緑地線 長堀橋駅 徒歩2分 (長堀橋駅の賃貸事務所) 地下鉄長堀鶴見緑地線 松屋町駅 徒歩7分 (松屋町駅の賃貸事務所) |
||
| 設備詳細 |
|
||
| EV基数 | 1基 | 人荷EV基数 | - |
| こだわり条件 |
|
||
| 備考 | |||
| アクセス | 新大阪駅まで電車16分 大阪駅梅田駅まで電車10分 関西空港まで電車52分、車46分 伊丹空港まで車22分 高速入口:環状線長堀入口 |
||
この物件の募集フロア
パレロワイヤル順慶町
- この物件へのお問い合わせはこちら


〒541-0048
大阪市中央区瓦町3丁目4番3号
瓦町公洋ビル6階
TEL:06-6231-4600
FAX:06-6231-4630
- 電話で取り急ぎ物件情報を聞く

- 物件コード:A205161
- 物件コードを電話でお伝えください
類似物件のご紹介
「パレロワイヤル順慶町」とエリア、賃料、広さが類似した物件をご紹介しております。
東邦(旧大バスビル心斎橋)
- 大阪府大阪市中央区博労町2丁目6番7号
- 19.97坪(66.02m²)
- @3,000円/坪
~@8,000円/坪 -
地下鉄堺筋線 長堀橋駅 徒歩5分
地下鉄長堀鶴見緑地線 長堀橋駅 徒歩5分
博労町エステート
- 大阪府大阪市中央区博労町1丁目4番10号
- 15.34坪(50.71m²)
- @3,000円/坪
~@8,000円/坪 -
地下鉄長堀鶴見緑地線 長堀橋駅 徒歩4分
地下鉄長堀鶴見緑地線 松屋町駅 徒歩5分






