お初天神EAST BLDG/2階 46.76坪 物件コード:C206233
- 電話で取り急ぎ物件情報を聞く
- 0120-366-200
- 物件コードを電話でお伝えください
物件コード:C206233


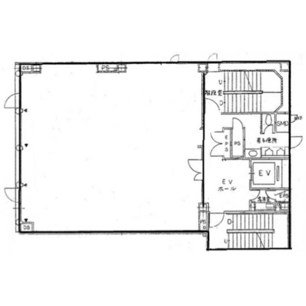
間取り図
おすすめポイント

- 大阪メトロ谷町線「東梅田」駅から徒歩3分の位置にある好立地物件です。東梅田駅含め6線路6駅徒歩圏内で利用可能になります。1993年竣工で新耐震基準のオフィスビルで24時間利用可能。機械警備のセキュリティにて安心して入居いただけます。事務所での使用はもちろん、美容院・サロン・クリニックでもご利用いただけます。2020年7月にリニューアル済みで清潔感のあるビルです。
ストリートビューを表示 ▼
- この物件の賃料の価格帯(共益費込)
- この部屋は成約済みです
お初天神EAST BLDGのその他の募集階
|
|
賃料はこの物件の価格帯を表示しています。詳しい情報は電話・メールでお問い合わせください!
物件概要
| 物件名 | お初天神EAST BLDG | ||
|---|---|---|---|
| 住所 | 大阪府大阪市北区曽根崎2丁目8番5号 | ||
| 構造 (規模) | 鉄筋コンクリート造地上8階地下1階建 | ||
| 坪数 | 46.76坪 | 築年月 | 1993年1月 |
| 階数 | 2階 | 空調タイプ | 個別 |
| 保証金 | - | ||
| 敷金 | - | 礼金 | - |
| 沿線・最寄駅 |
地下鉄谷町線 東梅田駅 徒歩3分 (東梅田駅の賃貸事務所) 地下鉄御堂筋線 梅田駅 徒歩7分 (梅田駅の賃貸事務所) JR大阪環状線 大阪駅 徒歩5分 (大阪駅の賃貸事務所) |
||
| 設備詳細 |
|
||
| EV基数 | 1基 | 人荷EV基数 | - |
| こだわり条件 |
|
||
| 備考 | |||
| アクセス | 新大阪駅まで電車14分 関西空港まで電車64分、車45分 伊丹空港まで車19分 高速入口:阪神高速12号守口線 |
||
- この物件へのお問い合わせはこちら


〒541-0048
大阪市中央区瓦町3丁目4番3号
瓦町公洋ビル6階
TEL:06-6231-4600
FAX:06-6231-4630
- 電話で取り急ぎ物件情報を聞く

- 物件コード:C206233
- 物件コードを電話でお伝えください
類似物件のご紹介
「お初天神EAST BLDG」とエリア、賃料、広さが類似した物件をご紹介しております。






