天満(1棟貸)/1階~5階 64.18坪 物件コード:C112250
- 電話で取り急ぎ物件情報を聞く
- 0120-366-200
- 物件コードを電話でお伝えください
物件コード:C112250


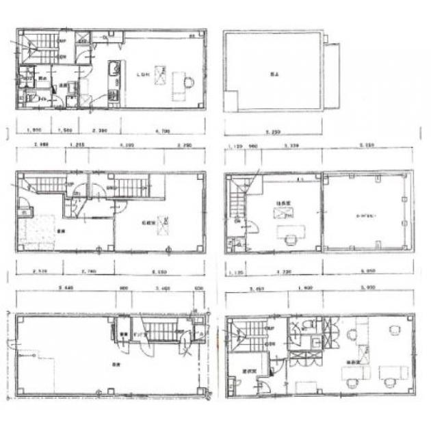
間取り図
おすすめポイント

- 大阪メトロ南森町駅・天満橋駅やJR東西線大阪天満宮駅が徒歩圏内にあり、フットワークの良いアクセス環境です。天満橋筋からも確認できるので視認性も良い物件です。
ストリートビューを表示 ▼
- この物件の賃料の価格帯(共益費込)
- @3,000円/坪~@8,000円/坪
天満(1棟貸)のその他の募集階
|
|
賃料はこの物件の価格帯を表示しています。詳しい情報は電話・メールでお問い合わせください!
物件概要
| 物件名 | 天満(1棟貸) | ||
|---|---|---|---|
| 住所 | 大阪府大阪市北区天満2丁目12番3号
南森町でよく検索されるその他の物件 |
||
| 構造 (規模) | 鉄骨造地上5階建 | ||
| 坪数 | 64.18坪 | 築年月 | 1986年11月 |
| 階数 | 1階~5階 | 空調タイプ | |
| 保証金 | - | ||
| 敷金 | 賃料の2カ月分 | 礼金 | 賃料の1カ月分 |
| 沿線・最寄駅 |
JR東西線 大阪天満宮駅 徒歩7分 (大阪天満宮駅の賃貸事務所) 地下鉄谷町線 天満橋駅 徒歩8分 (天満橋駅の賃貸事務所) 京阪線(本線・中之島線) 天満橋駅 徒歩8分 (天満橋駅の賃貸事務所) |
||
| 設備詳細 |
|
||
| EV基数 | - | 人荷EV基数 | - |
| こだわり条件 |
|
||
| 備考 | ・5階建一棟貸 ・メガバンク、郵便局徒歩圏内 ・エアコン、キッチン、シャワー室完備 ・防犯カメラ、セキュリティ完備 |
||
| アクセス | 新大阪駅まで電車23分 大阪駅梅田駅まで電車16分 関西空港まで電車53分、車45分 伊丹空港まで車20分 高速入口:阪神高速環状線南森町・高麗橋入口 |
||
- この物件へのお問い合わせはこちら


〒541-0048
大阪市中央区瓦町3丁目4番3号
瓦町公洋ビル6階
TEL:06-6231-4600
FAX:06-6231-4630
- 電話で取り急ぎ物件情報を聞く

- 物件コード:C112250
- 物件コードを電話でお伝えください
類似物件のご紹介
「天満(1棟貸)」とエリア、賃料、広さが類似した物件をご紹介しております。
大和地所南森町(旧新日本曽根崎)
- 大阪府大阪市北区西天満5丁目1番9号
- 61.56坪(203.50m²)
- @3,000円/坪
~@8,000円/坪 -
地下鉄谷町線 南森町駅 徒歩2分
地下鉄堺筋線 南森町駅 徒歩2分
大和地所南森町(旧新日本曽根崎)
- 大阪府大阪市北区西天満5丁目1番9号
- 61.56坪(203.50m²)
- @3,000円/坪
~@8,000円/坪 -
地下鉄谷町線 南森町駅 徒歩2分
地下鉄堺筋線 南森町駅 徒歩2分
ハイマート福寿
- 大阪府大阪市北区菅栄町7番15号
- 55.87坪(184.69m²)
- @3,000円/坪
~@8,000円/坪 -
地下鉄堺筋線 天神橋筋六丁目駅 徒歩5分
地下鉄谷町線 天神橋筋六丁目駅 徒歩5分






