タカヤマ(1棟貸)/1階~4階 220坪 物件コード:D204407
- 電話で取り急ぎ物件情報を聞く
- 0120-366-200
- 物件コードを電話でお伝えください
物件コード:D204407


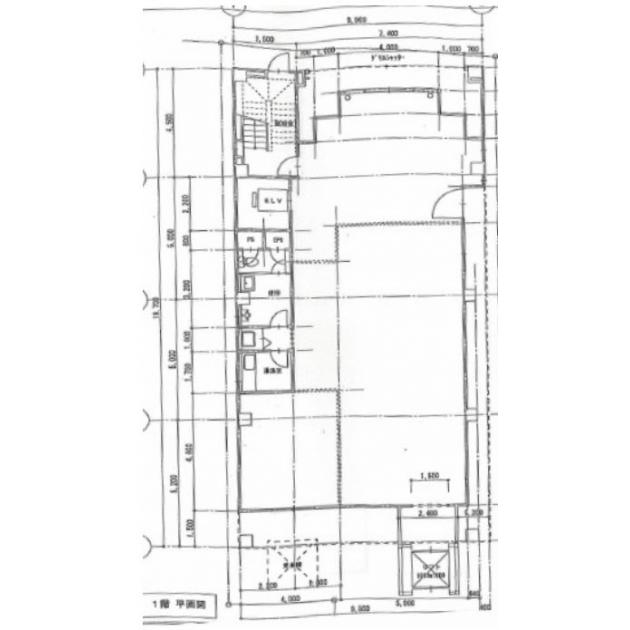
間取り図
おすすめポイント

- 自社ビル・飲食店舗・倉庫にも利用可能な1棟貸テナントです。大阪メトロ御堂筋線「東三国駅」から徒歩3分の好立地。エレベーターが2台(人荷用+荷物用)あり、北・南と2面道路に接道しているため搬入出に優れた物件になっています。屋上階のリフレッシュフロア(約38坪)も利用可能です。
ストリートビューを表示 ▼
- この物件の賃料の価格帯(共益費込)
- 相談
タカヤマ(1棟貸)のその他の募集階
|
|
賃料はこの物件の価格帯を表示しています。詳しい情報は電話・メールでお問い合わせください!
物件概要
| 物件名 | タカヤマ(1棟貸) | ||
|---|---|---|---|
| 住所 | 大阪府大阪市淀川区東三国4丁目14番26号
新大阪・西中島でよく検索されるその他の物件 |
||
| 構造 (規模) | 鉄骨造地上4階建 | ||
| 坪数 | 220坪 | 築年月 | 1994年8月 |
| 階数 | 1階~4階 | 空調タイプ | |
| 保証金 | - | ||
| 敷金 | - | 礼金 | - |
| 沿線・最寄駅 |
地下鉄御堂筋線 東三国駅 徒歩3分 (東三国駅の賃貸事務所) 地下鉄御堂筋線 新大阪駅 徒歩11分 (新大阪駅の賃貸事務所) JR東海道本線 新大阪駅 徒歩11分 (新大阪駅の賃貸事務所) |
||
| 設備詳細 |
|
||
| EV基数 | 1基 | 人荷EV基数 | 1基 |
| こだわり条件 |
|
||
| 備考 | ・駅地下 ・飲食店可 ・エレベーター、貨物用リフトあり ・屋上階に訳38坪の休憩フロアがあります |
||
| アクセス | 新大阪駅まで電車5分 大阪駅梅田駅まで電車10分 関西空港まで電車66分、車50分 伊丹空港まで車20分 高速入口:11号線加島入口 |
||
- この物件へのお問い合わせはこちら


〒541-0048
大阪市中央区瓦町3丁目4番3号
瓦町公洋ビル6階
TEL:06-6231-4600
FAX:06-6231-4630
- 電話で取り急ぎ物件情報を聞く

- 物件コード:D204407
- 物件コードを電話でお伝えください
類似物件のご紹介
「タカヤマ(1棟貸)」とエリア、賃料、広さが類似した物件をご紹介しております。
新大阪トラストタワー
- 大阪府大阪市淀川区宮原3丁目5番36号
- 218.6坪(722.64m²)
- @20,001円/坪
~@30,000円/坪 -
地下鉄御堂筋線 新大阪駅 徒歩2分
地下鉄御堂筋線 東三国駅 徒歩7分






