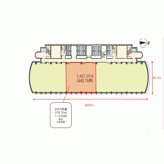
中之島三井/25階 113.95坪 物件コード:C305306
- 電話で取り急ぎ物件情報を聞く
- 0120-366-200
- 物件コードを電話でお伝えください
物件コード:C305306


おすすめポイント

- 中之島三井ビルディングは、60数年の長きにわたり稼動した中之島三井ビル本新館の閉館後、新たな基幹ビルとして建設したビルです。旧建物の外観フォルムの個性を継承しつつ、現代的な開放性と先進性を表現しています。また、大規模リニューアル工事が完了し、2019年には入居テナント向けのダイニング空間を中心とした、新たな共用スペースをオープンしています。
ストリートビューを表示 ▼
- この物件の賃料の価格帯(共益費込)
- @20,001円/坪~@30,000円/坪
中之島三井のその他の募集階
賃料はこの物件の価格帯を表示しています。詳しい情報は電話・メールでお問い合わせください!
物件概要
| 物件名 | 中之島三井 | ||
|---|---|---|---|
| 住所 | 大阪府大阪市北区中之島3丁目3番3号
西梅田・堂島・福島・中之島でよく検索されるその他の物件 |
||
| 構造 (規模) | 鉄骨・鉄骨鉄筋コンクリート造地上31階地下2階建 | ||
| 坪数 | 113.95坪 | 築年月 | 2002年8月1日 |
| 階数 | 25階 | 空調タイプ | 集中+個別 |
| 保証金 | - | ||
| 敷金 | 賃料の12カ月分 | 礼金 | - |
| 沿線・最寄駅 |
地下鉄四つ橋線 肥後橋駅 徒歩3分 (肥後橋駅の賃貸事務所) 京阪線(本線・中之島線) 大江橋駅 徒歩1分 (大江橋駅の賃貸事務所) JR東西線 北新地駅 徒歩7分 (北新地駅の賃貸事務所) |
||
| 設備詳細 |
|
||
| EV基数 | 12基 | 人荷EV基数 | 2基 |
| こだわり条件 |
|
||
| 備考 | 縦方向のラインを基調とした旧建物における外観を継承しつつ、ガラスのカーテンウォールやステンレスを採用し、開放性と先進性を表現しています。非常用発電設備有・耐震性能EV・非常用井戸設置(トイレ洗浄水確保) | ||
| アクセス | 新大阪駅まで電車20分 大阪駅梅田駅まで電車14分 関西空港まで電車64分、車45分 伊丹空港まで車20分 高速入口:環状線堂島・中之島入口 |
||
この物件の募集フロア
中之島三井
- この物件へのお問い合わせはこちら


〒541-0048
大阪市中央区瓦町3丁目4番3号
瓦町公洋ビル6階
TEL:06-6231-4600
FAX:06-6231-4630
- 電話で取り急ぎ物件情報を聞く

- 物件コード:C305306
- 物件コードを電話でお伝えください
類似物件のご紹介
「中之島三井」とエリア、賃料、広さが類似した物件をご紹介しております。
梅田スカイビルタワーウエスト
- 大阪府大阪市北区大淀中1丁目1番30号
- 119.05坪(393.55m²)
- @20,001円/坪
~@30,000円/坪 -
JR大阪環状線 大阪駅 徒歩6分
地下鉄御堂筋線 梅田駅 徒歩7分
桜橋IM
- 大阪府大阪市北区曽根崎新地1丁目4番20号
- 100.62坪(332.63m²)
- @20,001円/坪
~@30,000円/坪 -
JR東西線 北新地駅 徒歩1分
地下鉄四つ橋線 西梅田駅 徒歩2分
Nakanoshima Qross
- 大阪府大阪市北区中之島4丁目3番51号
- 127.65坪(421.98m²)
- @20,001円/坪
~@30,000円/坪 -
京阪線(本線・中之島線) 中之島駅 徒歩5分
地下鉄四つ橋線 肥後橋駅 徒歩10分
Nakanoshima Qross
- 大阪府大阪市北区中之島4丁目3番51号
- 127.65坪(421.98m²)
- @20,001円/坪
~@30,000円/坪 -
京阪線(本線・中之島線) 中之島駅 徒歩5分
地下鉄四つ橋線 肥後橋駅 徒歩10分






