新大阪サンアールビル南館/5階 11.66坪 物件コード:D101104
- 電話で取り急ぎ物件情報を聞く
- 0120-366-200
- 物件コードを電話でお伝えください
物件コード:D101104


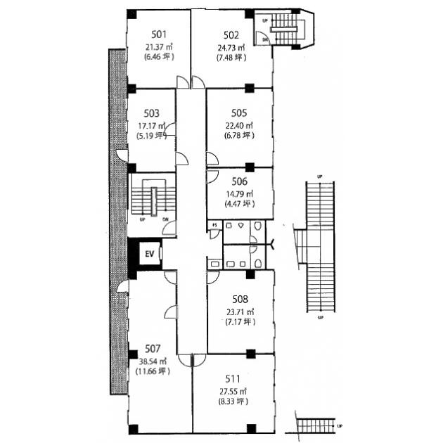
間取り図
おすすめポイント

- 周辺環境が静かな淀川河川公園の目の前の角地に建っているオフィスビル。もちろん、南側の窓からは淀川を見渡すことができる眺望で、人気があります。2019年にエントランス、外壁のリニューアル工事を行い生まれ変わりました。
ストリートビューを表示 ▼
- この物件の賃料の価格帯(共益費込)
- @8,001円/坪~@12,000円/坪
新大阪サンアールビル南館のその他の募集階
|
続きを表示 ▼ |
賃料はこの物件の価格帯を表示しています。詳しい情報は電話・メールでお問い合わせください!
物件概要
| 物件名 | 新大阪サンアールビル南館 | ||
|---|---|---|---|
| 住所 | 大阪府大阪市淀川区西中島1丁目11番4号
新大阪・西中島でよく検索されるその他の物件 |
||
| 構造 (規模) | 鉄筋コンクリート造地上7階建 | ||
| 坪数 | 11.66坪 | 築年月 | 1979年5月1日 |
| 階数 | 5階 | 空調タイプ | 個別 |
| 保証金 | - | ||
| 敷金 | 賃料の6カ月分 | 礼金 | - |
| 沿線・最寄駅 |
地下鉄御堂筋線 西中島南方駅 徒歩2分 (西中島南方駅の賃貸事務所) 地下鉄御堂筋線 新大阪駅 徒歩10分 (新大阪駅の賃貸事務所) JR東海道本線 新大阪駅 徒歩10分 (新大阪駅の賃貸事務所) |
||
| 設備詳細 |
|
||
| EV基数 | 1基 | 人荷EV基数 | - |
| こだわり条件 |
|
||
| 備考 | 地下鉄御堂筋線の西中島南方駅から徒歩3分。新大阪駅からは電車で6分 | ||
| アクセス | 新大阪駅まで電車6分 大阪駅梅田駅まで電車12分 関西空港まで電車64分、車50分 伊丹空港まで車20分 高速入口:11号線加島入口 |
||
- この物件へのお問い合わせはこちら


〒541-0048
大阪市中央区瓦町3丁目4番3号
瓦町公洋ビル6階
TEL:06-6231-4600
FAX:06-6231-4630
- 電話で取り急ぎ物件情報を聞く

- 物件コード:D101104
- 物件コードを電話でお伝えください
類似物件のご紹介
「新大阪サンアールビル南館」とエリア、賃料、広さが類似した物件をご紹介しております。
新大阪千代田ビル別館
- 大阪府大阪市淀川区宮原4丁目4番63号
- 10.02坪(33.12m²)
- @8,001円/坪
~@12,000円/坪 -
地下鉄御堂筋線 新大阪駅 徒歩6分
地下鉄御堂筋線 東三国駅 徒歩3分
天神第一
- 大阪府大阪市淀川区西中島4丁目2番26号
- 12.27坪(40.56m²)
- @8,001円/坪
~@12,000円/坪 -
地下鉄御堂筋線 西中島南方駅 徒歩1分
JR東海道本線 新大阪駅 徒歩6分
新大阪SONE
- 大阪府大阪市淀川区西中島7丁目1番29号
- 11.12坪(36.76m²)
- @8,001円/坪
~@12,000円/坪 -
地下鉄御堂筋線 新大阪駅 徒歩4分
地下鉄御堂筋線 西中島南方駅 徒歩4分
新大阪ビル西館(新大阪タマ)
- 大阪府大阪市淀川区西中島7丁目7番2号
- 12.29坪(40.63m²)
- @8,001円/坪
~@12,000円/坪 -
地下鉄御堂筋線 新大阪駅 徒歩3分
地下鉄御堂筋線 西中島南方駅 徒歩5分
新大阪SONE
- 大阪府大阪市淀川区西中島7丁目1番29号
- 11.12坪(36.76m²)
- @8,001円/坪
~@12,000円/坪 -
地下鉄御堂筋線 新大阪駅 徒歩4分
地下鉄御堂筋線 西中島南方駅 徒歩4分
サムティフェイム新大阪1号館
- 大阪府大阪市淀川区西中島6丁目5番3号
- 9.65坪(31.90m²)
- @8,001円/坪
~@12,000円/坪 -
地下鉄御堂筋線 新大阪駅 徒歩5分
地下鉄御堂筋線 西中島南方駅 徒歩3分






