ウィルファースト(旧サムティウィル)/3階 15.12坪 物件コード:D201104
- 電話で取り急ぎ物件情報を聞く
- 0120-366-200
- 物件コードを電話でお伝えください
物件コード:D201104
ストリートビューを表示 ▼
- この物件の賃料の価格帯(共益費込)
- @12,001円/坪~@15,000円/坪
ウィルファースト(旧サムティウィル)のその他の募集階
|
|
賃料はこの物件の価格帯を表示しています。詳しい情報は電話・メールでお問い合わせください!
物件概要
| 物件名 | ウィルファースト(旧サムティウィル) | ||
|---|---|---|---|
| 住所 | 大阪府大阪市淀川区宮原1丁目2番40号
新大阪・西中島でよく検索されるその他の物件 |
||
| 構造 (規模) | 鉄骨鉄筋コンクリート造地上10階建 | ||
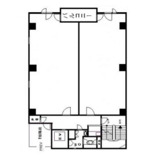
| 坪数 | 15.12坪 | 築年月 | 1987年4月30日 |
| 階数 | 3階 | 空調タイプ | 個別 |
| 保証金 | - | ||
| 敷金 | 賃料の5カ月分 | 礼金 | 賃料の2カ月分 |
| 沿線・最寄駅 |
JR東海道本線 新大阪駅 徒歩3分 (新大阪駅の賃貸事務所) 地下鉄御堂筋線 新大阪駅 徒歩4分 (新大阪駅の賃貸事務所) |
||
| 設備詳細 |
|
||
| EV基数 | 1基 | 人荷EV基数 | - |
| こだわり条件 |
|
||
| 備考 | |||
| アクセス | |||
この物件の募集フロア
ウィルファースト(旧サムティウィル)
- この物件へのお問い合わせはこちら


〒541-0048
大阪市中央区瓦町3丁目4番3号
瓦町公洋ビル6階
TEL:06-6231-4600
FAX:06-6231-4630
- 電話で取り急ぎ物件情報を聞く

- 物件コード:D201104
- 物件コードを電話でお伝えください
類似物件のご紹介
「ウィルファースト(旧サムティウィル)」とエリア、賃料、広さが類似した物件をご紹介しております。
イトーピア新大阪
- 大阪府大阪市淀川区西中島5丁目3番10号
- 16.93坪(55.97m²)
- @12,001円/坪
~@15,000円/坪 -
地下鉄御堂筋線 新大阪駅 徒歩3分
JR東海道本線 新大阪駅 徒歩3分
新大阪ローズ
- 大阪府大阪市淀川区西中島5丁目12番8号
- 17.22坪(56.93m²)
- @12,001円/坪
~@15,000円/坪 -
地下鉄御堂筋線 西中島南方駅 徒歩3分
地下鉄御堂筋線 新大阪駅 徒歩4分
NLC新大阪アース
- 大阪府大阪市淀川区宮原5丁目1番3号
- 12.66坪(41.85m²)
- @12,001円/坪
~@15,000円/坪 -
地下鉄御堂筋線 東三国駅 徒歩4分
地下鉄御堂筋線 新大阪駅 徒歩6分
新大阪丸ビル新館
- 大阪府大阪市東淀川区東中島1丁目18番27号
- 15.89坪(52.53m²)
- @12,001円/坪
~@15,000円/坪 -
地下鉄御堂筋線 新大阪駅 徒歩2分
地下鉄御堂筋線 西中島南方駅 徒歩12分
オリエンタル新大阪
- 大阪府大阪市淀川区西中島7丁目1番26号
- 16.04坪(53.02m²)
- @12,001円/坪
~@15,000円/坪 -
地下鉄御堂筋線 新大阪駅 徒歩4分
地下鉄御堂筋線 西中島南方駅 徒歩4分
オリエンタル新大阪
- 大阪府大阪市淀川区西中島7丁目1番26号
- 16.04坪(53.02m²)
- @12,001円/坪
~@15,000円/坪 -
地下鉄御堂筋線 新大阪駅 徒歩4分
地下鉄御堂筋線 西中島南方駅 徒歩4分








