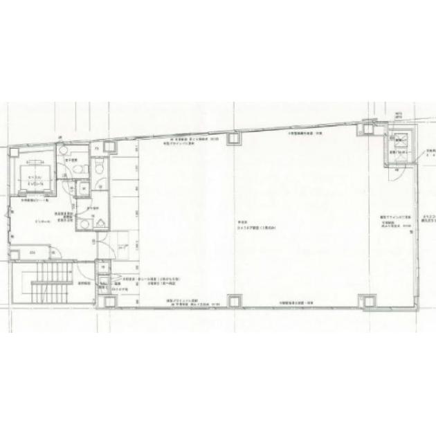
KS大手通/5階 37.49坪 物件コード:A310215
ワンフロア
- 電話で取り急ぎ物件情報を聞く
- 0120-366-200
- 物件コードを電話でお伝えください
物件コード:A310215
ストリートビューを表示 ▼
- この物件の賃料の価格帯(共益費込)
- この部屋は成約済みです
KS大手通のその他の募集階
賃料はこの物件の価格帯を表示しています。詳しい情報は電話・メールでお問い合わせください!
物件概要
| 物件名 | KS大手通 | ||
|---|---|---|---|
| 住所 | 大阪府大阪市中央区大手通2丁目2番13号 | ||
| 構造 (規模) | 鉄骨造地上8階 地下1階建 | ||
| 坪数 |
37.49坪
ワンフロア |
築年月 | 1992年 |
| 階数 | 5階 | 空調タイプ | 個別 |
| 保証金 | - | ||
| 敷金 | - | 礼金 | - |
| 沿線・最寄駅 |
地下鉄谷町線 天満橋駅 徒歩7分 (天満橋駅の賃貸事務所) 地下鉄谷町線 谷町四丁目駅 徒歩7分 (谷町四丁目駅の賃貸事務所) |
||
| 設備詳細 |
|
||
| EV基数 | 1基 | 人荷EV基数 | - |
| こだわり条件 |
|
||
| 備考 | |||
| アクセス | |||
この物件の募集フロア
KS大手通
- この物件へのお問い合わせはこちら


〒541-0048
大阪市中央区瓦町3丁目4番3号
瓦町公洋ビル6階
TEL:06-6231-4600
FAX:06-6231-4630
- 電話で取り急ぎ物件情報を聞く

- 物件コード:A310215
- 物件コードを電話でお伝えください
類似物件のご紹介
「KS大手通」とエリア、賃料、広さが類似した物件をご紹介しております。
カリカハウス(一棟貸)
- 大阪府大阪市天王寺区空堀町14番6号
- 36.21坪(119.70m²)
- @8,001円/坪
~@12,000円/坪 -
地下鉄長堀鶴見緑地線 玉造駅 徒歩6分
JR大阪環状線 玉造駅 徒歩9分
イトーピア谷町
- 大阪府大阪市天王寺区生玉前町1番17号
- 39坪(128.93m²)
- @8,001円/坪
~@12,000円/坪 -
地下鉄谷町線 谷町九丁目駅 徒歩1分
地下鉄千日前線 谷町九丁目駅 徒歩1分
あべのビアレ
- 大阪府大阪市阿倍野区旭町3丁目4番5号
- 35.64坪(117.82m²)
- @8,001円/坪
~@12,000円/坪 -
地下鉄御堂筋線 天王寺駅 徒歩10分
JR大阪環状線 天王寺駅 徒歩10分
栄光
- 大阪府大阪市中央区高津1丁目10番18号
- 35.09坪(116.00m²)
- @8,001円/坪
~@12,000円/坪 -
地下鉄谷町線 谷町九丁目駅 徒歩6分
地下鉄千日前線 谷町九丁目駅 徒歩6分
長光寺
- 大阪府大阪市中央区島町2丁目2番19号
- 31.9坪(105.45m²)
- @8,001円/坪
~@12,000円/坪 -
地下鉄谷町線 天満橋駅 徒歩2分
京阪線(本線・中之島線) 天満橋駅 徒歩3分








