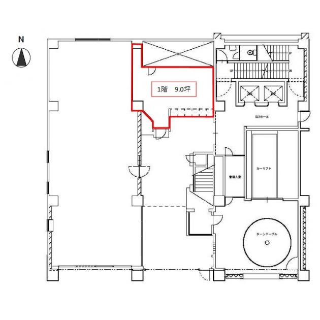
南森町パーク/1階 9坪 物件コード:C201502
- 電話で取り急ぎ物件情報を聞く
- 0120-366-200
- 物件コードを電話でお伝えください
物件コード:C201502
ストリートビューを表示 ▼
- この物件の賃料の価格帯(共益費込)
- @15,001円/坪~@20,000円/坪
南森町パークのその他の募集階
賃料はこの物件の価格帯を表示しています。詳しい情報は電話・メールでお問い合わせください!
物件概要
| 物件名 | 南森町パーク | ||
|---|---|---|---|
| 住所 | 大阪府大阪市北区西天満5丁目1番3号
南森町でよく検索されるその他の物件 |
||
| 構造 (規模) | 鉄骨鉄筋コンクリート造地上9階地下1階建 | ||
| 坪数 | 9坪 | 築年月 | 1978年10月1日 |
| 階数 | 1階 | 空調タイプ | 個別 |
| 保証金 | 総額1,800,000円 | ||
| 敷金 | 賃料の10カ月分 | 礼金 | - |
| 沿線・最寄駅 |
地下鉄谷町線 南森町駅 徒歩2分 (南森町駅の賃貸事務所) 地下鉄堺筋線 南森町駅 徒歩2分 (南森町駅の賃貸事務所) JR東西線 大阪天満宮駅 徒歩3分 (大阪天満宮駅の賃貸事務所) |
||
| 設備詳細 |
|
||
| EV基数 | 2基 | 人荷EV基数 | - |
| こだわり条件 |
|
||
| 備考 | |||
| アクセス | 新大阪駅まで電車17分 大阪駅梅田駅まで電車11分 関西空港まで電車56分、車45分 伊丹空港まで車20分 高速入口:環状線南森町・高麗橋入口 |
||
- この物件へのお問い合わせはこちら


〒541-0048
大阪市中央区瓦町3丁目4番3号
瓦町公洋ビル6階
TEL:06-6231-4600
FAX:06-6231-4630
- 電話で取り急ぎ物件情報を聞く

- 物件コード:C201502
- 物件コードを電話でお伝えください
類似物件のご紹介
「南森町パーク」とエリア、賃料、広さが類似した物件をご紹介しております。
ラ・オカシオン(旧国道)
- 大阪府大阪市北区曽根崎2丁目1番12号
- 10.32坪(34.12m²)
- @15,001円/坪
~@20,000円/坪 -
地下鉄御堂筋線 梅田駅 徒歩6分
地下鉄谷町線 東梅田駅 徒歩4分









