マルイト難波※この物件は現在、非掲載とさせていただいております。詳細はお問合せください 物件コード:F102101
- 電話で取り急ぎ物件情報を聞く
- 0120-366-200
- 物件コードを電話でお伝えください
物件コード:F102101
ストリートビューを表示 ▼
マルイト難波のその他の募集階
賃料はこの物件の価格帯を表示しています。詳しい情報は電話・メールでお問い合わせください!
物件概要
| 物件名 | マルイト難波 | ||
|---|---|---|---|
| 住所 | 大阪府大阪市浪速区湊町1丁目2番3号 | ||
| 構造 (規模) | 鉄骨鉄筋コンクリート造地上31階地下1階建 | ||
| 坪数 | 築年月 | 2009年8月1日 | |
| 階数 | 空調タイプ | 個別 | |
| 保証金 | - | ||
| 敷金 | - | 礼金 | - |
| 沿線・最寄駅 |
JR大和路線 JR難波駅 徒歩1分 (JR難波駅の賃貸事務所) 地下鉄四つ橋線 なんば駅 徒歩3分 (なんば駅の賃貸事務所) 近鉄線 大阪難波駅 徒歩3分 (大阪難波駅の賃貸事務所) |
||
| 設備詳細 |
|
||
| EV基数 | 10基 | 人荷EV基数 | 2基 |
| こだわり条件 |
|
||
| 備考 | |||
| アクセス | 新大阪駅まで電車15分 大阪駅梅田駅まで電車10分 関西空港まで電車50分、車36分 伊丹空港まで車17分 高速入口:環状線汐見橋・湊町 |
||
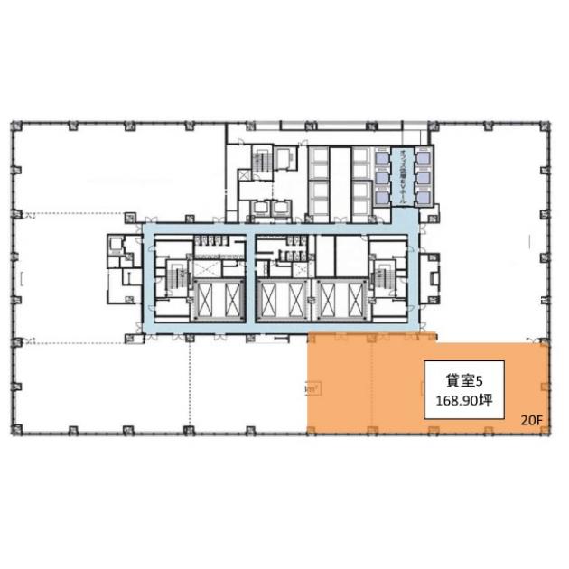
この物件の募集フロア
マルイト難波
- この物件へのお問い合わせはこちら


〒541-0048
大阪市中央区瓦町3丁目4番3号
瓦町公洋ビル6階
TEL:06-6231-4600
FAX:06-6231-4630
- 電話で取り急ぎ物件情報を聞く

- 物件コード:F102101
- 物件コードを電話でお伝えください









