NISHITENMA GTC BLDG(旧:リアライズ西天満)(旧F+BASEbruno)/7階 11.58坪 物件コード:C201331
- 電話で取り急ぎ物件情報を聞く
- 0120-366-200
- 物件コードを電話でお伝えください
物件コード:C201331


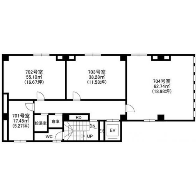
間取り図
おすすめポイント
- スタートアップの方におすすめのNISHITENMA GTC BLDG(旧:リアライズ西天満)(旧F+BASEbruno)ビルは、西天満エリアに位置し、大阪メトロ堺筋線「南森町駅」駅徒歩3分、大阪メトロ谷町線「南森町駅」駅徒歩3分の立地にあるオフィスビルです。 梅田エリアへのアクセスも良好でありながら、落ち着いた環境が魅力のオフィスエリアです。 構造は鉄筋コンクリート造地上7階地下1階建です。 1970年竣工です。
業種についても柔軟に対応いただけますので、ご相談ください。
ストリートビューを表示 ▼
- この物件の賃料の価格帯(共益費込)
- この部屋は成約済みです
NISHITENMA GTC BLDG(旧:リアライズ西天満)(旧F+BASEbruno)のその他の募集階
賃料はこの物件の価格帯を表示しています。詳しい情報は電話・メールでお問い合わせください!
物件概要
| 物件名 | NISHITENMA GTC BLDG(旧:リアライズ西天満)(旧F+BASEbruno) | ||
|---|---|---|---|
| 住所 | 大阪府大阪市北区西天満3丁目6番35号 | ||
| 構造 (規模) | 鉄筋コンクリート造地上7階地下1階建 | ||
| 坪数 | 11.58坪 | 築年月 | 1970年8月1日 |
| 階数 | 7階 | 空調タイプ | 個別 |
| 保証金 | - | ||
| 敷金 | - | 礼金 | - |
| 沿線・最寄駅 |
地下鉄堺筋線 南森町駅 徒歩3分 (南森町駅の賃貸事務所) 地下鉄谷町線 南森町駅 徒歩3分 (南森町駅の賃貸事務所) JR東西線 大阪天満宮駅 徒歩4分 (大阪天満宮駅の賃貸事務所) |
||
| 設備詳細 |
|
||
| EV基数 | 1基 | 人荷EV基数 | - |
| こだわり条件 |
|
||
| 備考 | ・大阪メトロ堺筋線「南森町駅」徒歩3分 ・空中店舗相談可 |
||
| アクセス | 新大阪駅まで電車18分 大阪駅梅田駅まで電車12分 関西空港まで電車58分、車45分 伊丹空港まで車20分 高速入口:環状線南森町・高麗橋入口 |
||
この物件の募集フロア
NISHITENMA GTC BLDG(旧:リアライズ西天満)(旧F+BASEbruno)
- この物件へのお問い合わせはこちら


〒541-0048
大阪市中央区瓦町3丁目4番3号
瓦町公洋ビル6階
TEL:06-6231-4600
FAX:06-6231-4630
- 電話で取り急ぎ物件情報を聞く

- 物件コード:C201331
- 物件コードを電話でお伝えください
類似物件のご紹介
「NISHITENMA GTC BLDG(旧:リアライズ西天満)(旧F+BASEbruno)」とエリア、賃料、広さが類似した物件をご紹介しております。
扇町センター(旧新星和扇町)
- 大阪府大阪市北区末広町3番21号
- 12.39坪(40.96m²)
- @8,001円/坪
~@12,000円/坪 -
地下鉄堺筋線 扇町駅 徒歩1分
地下鉄堺筋線 南森町駅 徒歩5分






