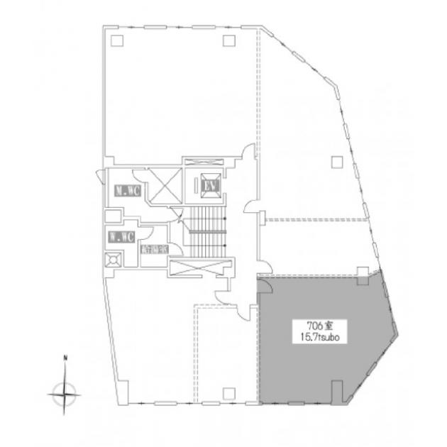
ニュー若杉/7階 15.7坪 物件コード:J103106
- 電話で取り急ぎ物件情報を聞く
- 0120-366-200
- 物件コードを電話でお伝えください
物件コード:J103106
ストリートビューを表示 ▼
- この物件の賃料の価格帯(共益費込)
- @8,001円/坪~@12,000円/坪
ニュー若杉のその他の募集階
賃料はこの物件の価格帯を表示しています。詳しい情報は電話・メールでお問い合わせください!
物件概要
| 物件名 | ニュー若杉 | ||
|---|---|---|---|
| 住所 | 大阪府大阪市都島区東野田町1丁目21番14号
OBP・京橋・ 森之宮でよく検索されるその他の物件 |
||
| 構造 (規模) | 鉄骨鉄筋コンクリート造地上10階地下1階建 | ||
| 坪数 | 15.7坪 | 築年月 | 1974年8月 |
| 階数 | 7階 | 空調タイプ | 個別 |
| 保証金 | - | ||
| 敷金 | 賃料の127カ月分 | 礼金 | - |
| 沿線・最寄駅 |
地下鉄長堀鶴見緑地線 京橋駅 徒歩2分 (京橋駅の賃貸事務所) 京阪線(本線・中之島線) 京橋駅 徒歩3分 (京橋駅の賃貸事務所) JR大阪環状線 京橋駅 徒歩3分 (京橋駅の賃貸事務所) |
||
| 設備詳細 |
|
||
| EV基数 | 1基 | 人荷EV基数 | - |
| こだわり条件 |
|
||
| 備考 | |||
| アクセス | 新大阪駅まで電車17分 大阪駅梅田駅まで電車10分 関西空港まで電車58分、車55分 伊丹空港まで車22分 高速入口:法円坂・高麗橋入口 |
||
この物件の募集フロア
ニュー若杉
- この物件へのお問い合わせはこちら


〒541-0048
大阪市中央区瓦町3丁目4番3号
瓦町公洋ビル6階
TEL:06-6231-4600
FAX:06-6231-4630
- 電話で取り急ぎ物件情報を聞く

- 物件コード:J103106
- 物件コードを電話でお伝えください
類似物件のご紹介
「ニュー若杉」とエリア、賃料、広さが類似した物件をご紹介しております。
シャトーOM玉造
- 大阪府大阪市東成区東小橋1丁目13番16号
- 14坪(46.28m²)
- @8,001円/坪
~@12,000円/坪 -
JR大阪環状線 玉造駅 徒歩3分
地下鉄長堀鶴見緑地線 玉造駅 徒歩5分
鵲森之宮(カササギモリノミヤ)
- 大阪府大阪市中央区森ノ宮中央1丁目14番2号
- 14.47坪(47.83m²)
- @8,001円/坪
~@12,000円/坪 -
地下鉄中央線 森ノ宮駅 徒歩1分
地下鉄長堀鶴見緑地線 森ノ宮駅 徒歩1分








