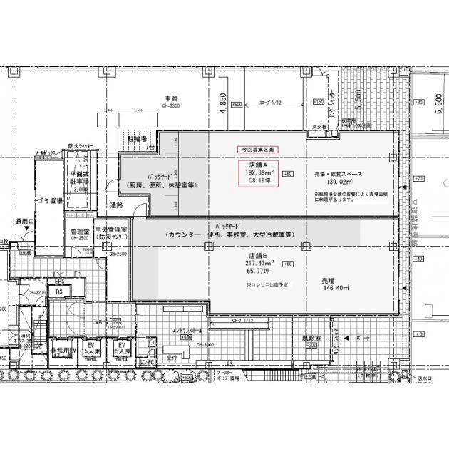
ミライト・ワン桜川(旧ミライト関西支店)/1階 58.19坪 物件コード:F101211
- 電話で取り急ぎ物件情報を聞く
- 0120-366-200
- 物件コードを電話でお伝えください
物件コード:F101211
ストリートビューを表示 ▼
- この物件の賃料の価格帯(共益費込)
- この部屋は成約済みです
ミライト・ワン桜川(旧ミライト関西支店)のその他の募集階
|
|
賃料はこの物件の価格帯を表示しています。詳しい情報は電話・メールでお問い合わせください!
物件概要
| 物件名 | ミライト・ワン桜川(旧ミライト関西支店) | ||
|---|---|---|---|
| 住所 | 大阪府大阪市浪速区幸町2丁目2番13号 | ||
| 構造 (規模) | 鉄骨造地上8階建 | ||
| 坪数 | 58.19坪 | 築年月 | 2021年12月1日 |
| 階数 | 1階 | 空調タイプ | |
| 保証金 | - | ||
| 敷金 | - | 礼金 | - |
| 沿線・最寄駅 |
地下鉄千日前線 桜川駅 徒歩1分 (桜川駅の賃貸事務所) JR大和路線 JR難波駅 徒歩5分 (JR難波駅の賃貸事務所) 地下鉄四つ橋線 なんば駅 徒歩6分 (なんば駅の賃貸事務所) |
||
| 設備詳細 |
|
||
| EV基数 | - | 人荷EV基数 | - |
| こだわり条件 |
|
||
| 備考 | 千日通沿いの新築ビル。1階に店舗2区画あり、内1区画はコンビニが入居 | ||
| アクセス | 新大阪駅まで電車23分 大阪駅梅田駅まで電車17分 関西空港まで電車65分、車40分 伊丹空港まで車17分 高速入口:環状線汐見橋・湊町入口 |
||
- この物件へのお問い合わせはこちら


〒541-0048
大阪市中央区瓦町3丁目4番3号
瓦町公洋ビル6階
TEL:06-6231-4600
FAX:06-6231-4630
- 電話で取り急ぎ物件情報を聞く

- 物件コード:F101211
- 物件コードを電話でお伝えください
類似物件のご紹介
「ミライト・ワン桜川(旧ミライト関西支店)」とエリア、賃料、広さが類似した物件をご紹介しております。
(仮称)プレリー日本橋テナントPROJECT
- 大阪府大阪市中央区日本橋1丁目5番10号
- 58.49坪(193.36m²)
- @20,001円/坪
~@30,000円/坪 -
地下鉄堺筋線 日本橋駅 徒歩1分
地下鉄千日前線 日本橋駅 徒歩1分
御堂筋グランド
- 大阪府大阪市中央区難波2丁目2番3号
- 47.31坪(156.40m²)
- @20,001円/坪
~@30,000円/坪 -
地下鉄御堂筋線 なんば駅 徒歩1分
地下鉄千日前線 なんば駅 徒歩1分
(仮称)プレリー日本橋テナントPROJECT
- 大阪府大阪市中央区日本橋1丁目5番10号
- 58.49坪(193.36m²)
- @20,001円/坪
~@30,000円/坪 -
地下鉄堺筋線 日本橋駅 徒歩1分
地下鉄千日前線 日本橋駅 徒歩1分









