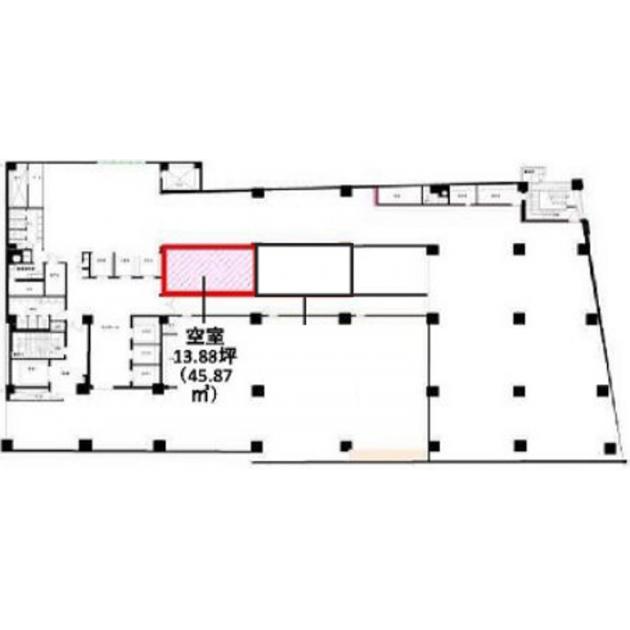
関電不動産梅田新道(旧ザイマックス梅田新道)/2階 13.88坪 物件コード:C303101
- 電話で取り急ぎ物件情報を聞く
- 0120-366-200
- 物件コードを電話でお伝えください
物件コード:C303101


間取り図
おすすめポイント

- 大手不動産会社ザイマックスグループ(前身はリクルートビル事業部)が取得し、入居する基準階面積約340坪の角ビル。共用部のリニューアルを施し、清潔感のある雰囲気になっており、淀屋橋からも近く、大通りを見下ろすロケーションは開放感があります。
ストリートビューを表示 ▼
- この物件の賃料の価格帯(共益費込)
- この部屋は成約済みです
関電不動産梅田新道(旧ザイマックス梅田新道)のその他の募集階
|
|
賃料はこの物件の価格帯を表示しています。詳しい情報は電話・メールでお問い合わせください!
物件概要
| 物件名 | 関電不動産梅田新道(旧ザイマックス梅田新道) | ||
|---|---|---|---|
| 住所 | 大阪府大阪市北区堂島1丁目1番5号 | ||
| 構造 (規模) | 鉄骨鉄筋コンクリート造地上12階地下3階建 | ||
| 坪数 | 13.88坪 | 築年月 | 1980年1月 |
| 階数 | 2階 | 空調タイプ | 集中+個別 |
| 保証金 | - | ||
| 敷金 | - | 礼金 | - |
| 沿線・最寄駅 |
京阪線(本線・中之島線) 大江橋駅 徒歩3分 (大江橋駅の賃貸事務所) 地下鉄御堂筋線 淀屋橋駅 徒歩4分 (淀屋橋駅の賃貸事務所) 地下鉄谷町線 東梅田駅 徒歩6分 (東梅田駅の賃貸事務所) |
||
| 設備詳細 |
|
||
| EV基数 | 6基 | 人荷EV基数 | 1基 |
| こだわり条件 |
|
||
| 備考 | 梅田と淀屋橋の中間に建つ御堂筋に面す大型ビル。1階に24時間営業の都市型スーパー「foodium堂島」が営業中。 | ||
| アクセス | 新大阪駅まで電車14分 大阪駅梅田駅まで電車8分 関西空港まで電車58分、車45分 伊丹空港まで車20分 高速入口:環状線堂島・梅田入口 |
||
この物件の募集フロア
関電不動産梅田新道(旧ザイマックス梅田新道)
- この物件へのお問い合わせはこちら


〒541-0048
大阪市中央区瓦町3丁目4番3号
瓦町公洋ビル6階
TEL:06-6231-4600
FAX:06-6231-4630
- 電話で取り急ぎ物件情報を聞く

- 物件コード:C303101
- 物件コードを電話でお伝えください
類似物件のご紹介
「関電不動産梅田新道(旧ザイマックス梅田新道)」とエリア、賃料、広さが類似した物件をご紹介しております。
ACN西天満(旧BRAVE西天満)
- 大阪府大阪市北区西天満2丁目10番10号
- 15.46坪(51.11m²)
- @15,001円/坪
~@20,000円/坪 -
地下鉄御堂筋線 淀屋橋駅 徒歩6分
地下鉄谷町線 東梅田駅 徒歩8分
エムタナカ梅田
- 大阪府大阪市北区曽根崎新地2丁目6番30号
- 13.53坪(44.73m²)
- @15,001円/坪
~@20,000円/坪 -
地下鉄四つ橋線 西梅田駅 徒歩3分
JR東西線 北新地駅 徒歩2分






