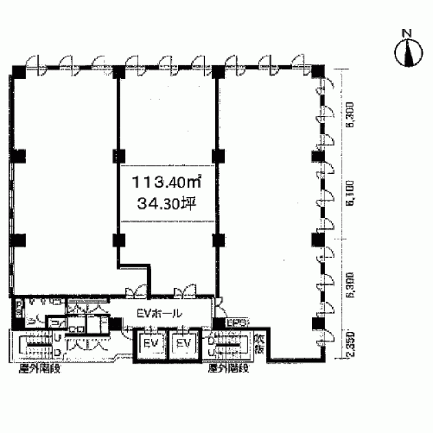
ODC天満橋(旧レナ天満橋)/8階 34.3坪 物件コード:A307110
- 電話で取り急ぎ物件情報を聞く
- 0120-366-200
- 物件コードを電話でお伝えください
物件コード:A307110
ストリートビューを表示 ▼
- この物件の賃料の価格帯(共益費込)
- この部屋は成約済みです
ODC天満橋(旧レナ天満橋)のその他の募集階
|
|
賃料はこの物件の価格帯を表示しています。詳しい情報は電話・メールでお問い合わせください!
物件概要
| 物件名 | ODC天満橋(旧レナ天満橋) | ||
|---|---|---|---|
| 住所 | 大阪府大阪市中央区船越町1丁目6番6号 | ||
| 構造 (規模) | 鉄骨鉄筋コンクリート造地上10階地下1階建 | ||
| 坪数 | 34.3坪 | 築年月 | 1991年10月 |
| 階数 | 8階 | 空調タイプ | 個別 |
| 保証金 | - | ||
| 敷金 | - | 礼金 | - |
| 沿線・最寄駅 |
地下鉄谷町線 天満橋駅 徒歩3分 (天満橋駅の賃貸事務所) 京阪線(本線・中之島線) 天満橋駅 徒歩5分 (天満橋駅の賃貸事務所) 地下鉄谷町線 谷町四丁目駅 徒歩6分 (谷町四丁目駅の賃貸事務所) |
||
| 設備詳細 |
|
||
| EV基数 | 2基 | 人荷EV基数 | - |
| こだわり条件 |
|
||
| 備考 | |||
| アクセス | 新大阪駅まで電車18分 大阪駅梅田駅まで電車12分 関西空港まで電車58分、車45分 伊丹空港まで車20分 高速入口:環状線高麗橋・法円坂入口 |
||
この物件の募集フロア
ODC天満橋(旧レナ天満橋)
- この物件へのお問い合わせはこちら


〒541-0048
大阪市中央区瓦町3丁目4番3号
瓦町公洋ビル6階
TEL:06-6231-4600
FAX:06-6231-4630
- 電話で取り急ぎ物件情報を聞く

- 物件コード:A307110
- 物件コードを電話でお伝えください
類似物件のご紹介
「ODC天満橋(旧レナ天満橋)」とエリア、賃料、広さが類似した物件をご紹介しております。
アクアタワー
- 大阪府大阪市中央区北浜東6番6号
- 38.45坪(127.11m²)
- @8,001円/坪
~@12,000円/坪 -
京阪線(本線・中之島線) 天満橋駅 徒歩3分
地下鉄谷町線 天満橋駅 徒歩4分
イトーピア谷町
- 大阪府大阪市天王寺区生玉前町1番17号
- 39坪(128.93m²)
- @8,001円/坪
~@12,000円/坪 -
地下鉄谷町線 谷町九丁目駅 徒歩1分
地下鉄千日前線 谷町九丁目駅 徒歩1分
カリカハウス(一棟貸)
- 大阪府大阪市天王寺区空堀町14番6号
- 36.21坪(119.70m²)
- @8,001円/坪
~@12,000円/坪 -
地下鉄長堀鶴見緑地線 玉造駅 徒歩6分
JR大阪環状線 玉造駅 徒歩9分









