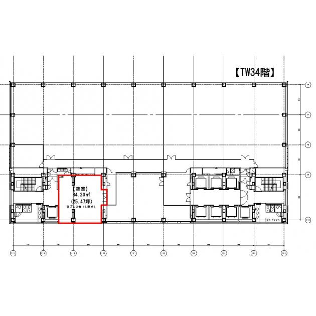
梅田スカイビルタワーウエスト/34階 25.47坪 物件コード:C508101
- 電話で取り急ぎ物件情報を聞く
- 0120-366-200
- 物件コードを電話でお伝えください
物件コード:C508101


間取り図
おすすめポイント

- 地上40階・地下2階、高さ約173メートル、大阪を代表する超高層ハイグレード・ランドマークビル。「TOP 20 BUILDINGS AROUND THE WORLD」の一つに、アテネのパルテノン神殿、ローマのコロッセオといった歴史的建造物と共に選出されるなど世界的に有名な建築物です。基準階面積約450坪のフロアで、有名企業が多数入居、価値ある物件です。
ストリートビューを表示 ▼
- この物件の賃料の価格帯(共益費込)
- @20,001円/坪~@30,000円/坪
梅田スカイビルタワーウエストのその他の募集階
賃料はこの物件の価格帯を表示しています。詳しい情報は電話・メールでお問い合わせください!
物件概要
| 物件名 | 梅田スカイビルタワーウエスト | ||
|---|---|---|---|
| 住所 | 大阪府大阪市北区大淀中1丁目1番30号
梅田・西梅田・堂島・福島でよく検索されるその他の物件 |
||
| 構造 (規模) | 鉄筋コンクリート・鉄骨鉄筋コンクリート造地上40階地下2階建 | ||
| 坪数 | 25.47坪 | 築年月 | 1993年3月25日 |
| 階数 | 34階 | 空調タイプ | 集中+個別 |
| 保証金 | - | ||
| 敷金 | 賃料の12カ月分 | 礼金 | - |
| 沿線・最寄駅 |
JR大阪環状線 大阪駅 徒歩6分 (大阪駅の賃貸事務所) 地下鉄御堂筋線 梅田駅 徒歩7分 (梅田駅の賃貸事務所) JR大阪環状線 福島駅 徒歩8分 (福島駅の賃貸事務所) |
||
| 設備詳細 |
|
||
| EV基数 | 12基 | 人荷EV基数 | 2基 |
| こだわり条件 |
|
||
| 備考 | |||
| アクセス | 新大阪駅まで電車12分 大阪駅梅田駅まで電車6分 関西空港まで電車67分、車45分 伊丹空港まで車20分 高速入口:環状線梅田・福島入口 |
||
この物件の募集フロア
梅田スカイビルタワーウエスト
- この物件へのお問い合わせはこちら


〒541-0048
大阪市中央区瓦町3丁目4番3号
瓦町公洋ビル6階
TEL:06-6231-4600
FAX:06-6231-4630
- 電話で取り急ぎ物件情報を聞く

- 物件コード:C508101
- 物件コードを電話でお伝えください
類似物件のご紹介
「梅田スカイビルタワーウエスト」とエリア、賃料、広さが類似した物件をご紹介しております。
中之島フェスティバルタワー
- 大阪府大阪市北区中之島2丁目3番18号
- 24.91坪(82.35m²)
- @20,001円/坪
~@30,000円/坪 -
地下鉄四つ橋線 西梅田駅 徒歩3分
地下鉄御堂筋線 淀屋橋駅 徒歩5分
中之島フェスティバルタワー
- 大阪府大阪市北区中之島2丁目3番18号
- 24.91坪(82.35m²)
- @20,001円/坪
~@30,000円/坪 -
地下鉄四つ橋線 西梅田駅 徒歩3分
地下鉄御堂筋線 淀屋橋駅 徒歩5分






