協和姫島/6階 坪 物件コード:M101103
- 電話で取り急ぎ物件情報を聞く
- 0120-366-200
- 物件コードを電話でお伝えください
物件コード:M101103


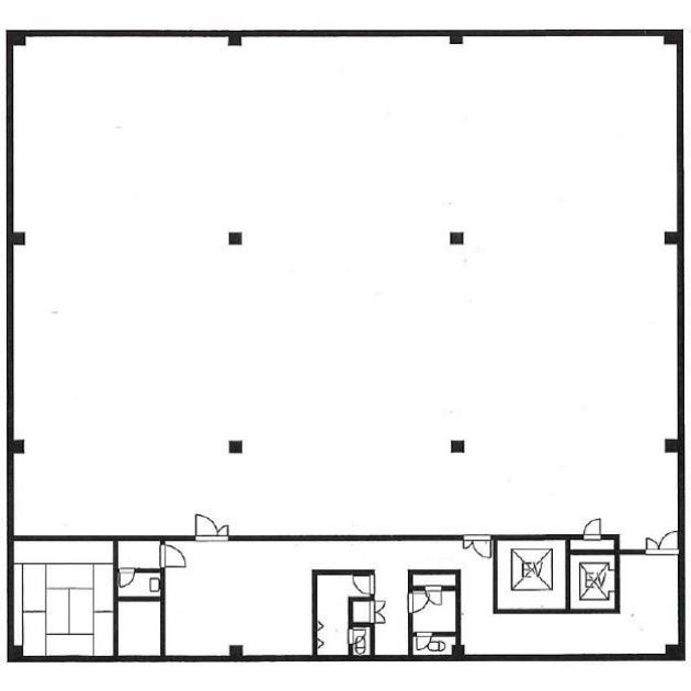
間取り図
おすすめポイント

- 阪神なんば線『福』駅から徒歩7分、基準階面積約160坪の大型ビルです。ワンフロア貸なので、他テナントを気にすることなくご利用頂けます。
ストリートビューを表示 ▼
- この物件の賃料の価格帯(共益費込)
- @3,000円/坪~@8,000円/坪
協和姫島のその他の募集階
|
|
賃料はこの物件の価格帯を表示しています。詳しい情報は電話・メールでお問い合わせください!
物件概要
| 物件名 | 協和姫島 | ||
|---|---|---|---|
| 住所 | 大阪府大阪市西淀川区福町3丁目1番48号
ベイエリアでよく検索されるその他の物件 |
||
| 構造 (規模) | 鉄骨造地上6階建 | ||
| 坪数 | 坪 | 築年月 | 1987年7月 |
| 階数 | 6階 | 空調タイプ | 個別 |
| 保証金 | - | ||
| 敷金 | 賃料の1カ月分 | 礼金 | 賃料の2カ月分 |
| 沿線・最寄駅 | |||
| 設備詳細 |
|
||
| EV基数 | 1基 | 人荷EV基数 | 1基 |
| こだわり条件 |
|
||
| 備考 | ・阪神なんば線『福』駅徒歩7分 ・阪神本線『姫島』駅徒歩17分 ・新耐震基準適合 |
||
| アクセス | 新大阪駅まで電車34分 大阪駅梅田駅まで電車24分 関西空港まで電車78分、車46分 伊丹空港まで車24分 |
||
この物件の募集フロア
協和姫島
- この物件へのお問い合わせはこちら


〒541-0048
大阪市中央区瓦町3丁目4番3号
瓦町公洋ビル6階
TEL:06-6231-4600
FAX:06-6231-4630
- 電話で取り急ぎ物件情報を聞く

- 物件コード:M101103
- 物件コードを電話でお伝えください
類似物件のご紹介
「協和姫島」とエリア、賃料、広さが類似した物件をご紹介しております。
三軒家西三丁目一棟貸 事務所倉庫
- 大阪府大阪市大正区三軒家西3丁目4番17号
- 292.12坪(965.69m²)
- @3,000円/坪
~@8,000円/坪 -
地下鉄長堀鶴見緑地線 大正駅 徒歩10分
JR大阪環状線 大正駅 徒歩10分






