21センチュリー/3階 23坪 物件コード:I1061026
- 電話で取り急ぎ物件情報を聞く
- 0120-366-200
- 物件コードを電話でお伝えください
物件コード:I1061026


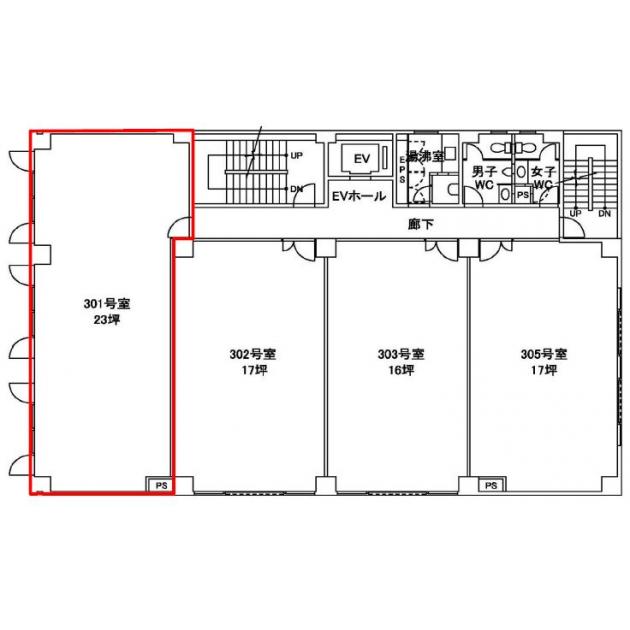
間取り図
おすすめポイント

- 地下鉄御堂筋線『江坂駅』徒歩2分の駅近ビルです。4番5番出入口が近いです。近隣にはコンビニやスーパー、ドラッグストアがあるので、利便性が高いです。2007年には外壁(御影石)をリニューアルしています。
ストリートビューを表示 ▼
- この物件の賃料の価格帯(共益費込)
- @8,001円/坪~@12,000円/坪
21センチュリーのその他の募集階
賃料はこの物件の価格帯を表示しています。詳しい情報は電話・メールでお問い合わせください!
物件概要
| 物件名 | 21センチュリー | ||
|---|---|---|---|
| 住所 | 大阪府吹田市豊津町10番26号
江坂・千里中央・箕面でよく検索されるその他の物件 |
||
| 構造 (規模) | 鉄筋コンクリート造地上5階建 | ||
| 坪数 | 23坪 | 築年月 | 1990年3月1日 |
| 階数 | 3階 | 空調タイプ | 個別 |
| 保証金 | - | ||
| 敷金 | 賃料の3カ月分 | 礼金 | 賃料の3カ月分 |
| 沿線・最寄駅 |
地下鉄御堂筋線 江坂駅 徒歩2分 (江坂駅の賃貸事務所) |
||
| 設備詳細 |
|
||
| EV基数 | 1基 | 人荷EV基数 | - |
| こだわり条件 |
|
||
| 備考 | ・駅近 ・新耐震基準適合 ・2007年外壁リニューアル |
||
| アクセス | 新大阪駅まで電車8分 大阪駅梅田駅まで電車16分 関西空港まで電車66分、車55分 伊丹空港まで車13分 高速入口:豊中・豊中南入口 |
||
- この物件へのお問い合わせはこちら


〒541-0048
大阪市中央区瓦町3丁目4番3号
瓦町公洋ビル6階
TEL:06-6231-4600
FAX:06-6231-4630
- 電話で取り急ぎ物件情報を聞く

- 物件コード:I1061026
- 物件コードを電話でお伝えください
類似物件のご紹介
「21センチュリー」とエリア、賃料、広さが類似した物件をご紹介しております。






