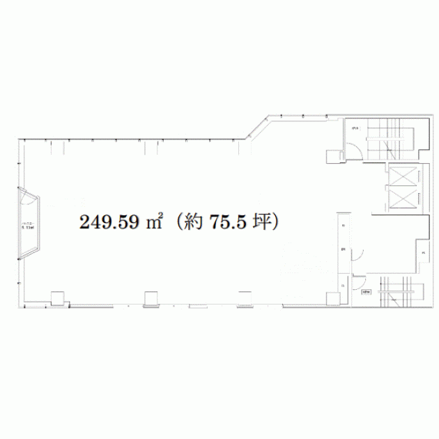
敬和 ルフレ21/7階 77.05坪 物件コード:A502126
- 電話で取り急ぎ物件情報を聞く
- 0120-366-200
- 物件コードを電話でお伝えください
物件コード:A502126
ストリートビューを表示 ▼
- この物件の賃料の価格帯(共益費込)
- この部屋は成約済みです
敬和 ルフレ21のその他の募集階
|
|
賃料はこの物件の価格帯を表示しています。詳しい情報は電話・メールでお問い合わせください!
物件概要
| 物件名 | 敬和 ルフレ21 | ||
|---|---|---|---|
| 住所 | 大阪府大阪市中央区心斎橋筋1丁目10番11号 | ||
| 構造 (規模) | 地上10階建 | ||
| 坪数 | 77.05坪 | 築年月 | 1986年3月1日 |
| 階数 | 7階 | 空調タイプ | |
| 保証金 | - | ||
| 敷金 | - | 礼金 | - |
| 沿線・最寄駅 |
地下鉄御堂筋線 心斎橋駅 徒歩1分 (心斎橋駅の賃貸事務所) 地下鉄長堀鶴見緑地線 心斎橋駅 徒歩1分 (心斎橋駅の賃貸事務所) 地下鉄堺筋線 長堀橋駅 徒歩5分 (長堀橋駅の賃貸事務所) |
||
| 設備詳細 |
|
||
| EV基数 | 1基 | 人荷EV基数 | - |
| こだわり条件 |
|
||
| 備考 | |||
| アクセス | 新大阪駅まで電車14分 大阪駅梅田駅まで電車8分 関西空港まで電車46分、車45分 伊丹空港まで車20分 高速入口:環状線四ツ橋・湊町入口 |
||
この物件の募集フロア
敬和 ルフレ21
- この物件へのお問い合わせはこちら


〒541-0048
大阪市中央区瓦町3丁目4番3号
瓦町公洋ビル6階
TEL:06-6231-4600
FAX:06-6231-4630
- 電話で取り急ぎ物件情報を聞く

- 物件コード:A502126
- 物件コードを電話でお伝えください
類似物件のご紹介
「敬和 ルフレ21」とエリア、賃料、広さが類似した物件をご紹介しております。
ゼント心斎橋(旧ヒューリック心斎橋)
- 大阪府大阪市中央区南船場4丁目3番2号
- 91.83坪(303.57m²)
- @15,001円/坪
~@20,000円/坪 -
地下鉄御堂筋線 心斎橋駅 徒歩3分
地下鉄長堀鶴見緑地線 心斎橋駅 徒歩3分
ゼント心斎橋(旧ヒューリック心斎橋)
- 大阪府大阪市中央区南船場4丁目3番2号
- 91.83坪(303.57m²)
- @15,001円/坪
~@20,000円/坪 -
地下鉄御堂筋線 心斎橋駅 徒歩3分
地下鉄長堀鶴見緑地線 心斎橋駅 徒歩3分








