メットライフ本町スクエア/1階 62.42坪 物件コード:A111211
- 電話で取り急ぎ物件情報を聞く
- 0120-366-200
- 物件コードを電話でお伝えください
物件コード:A111211


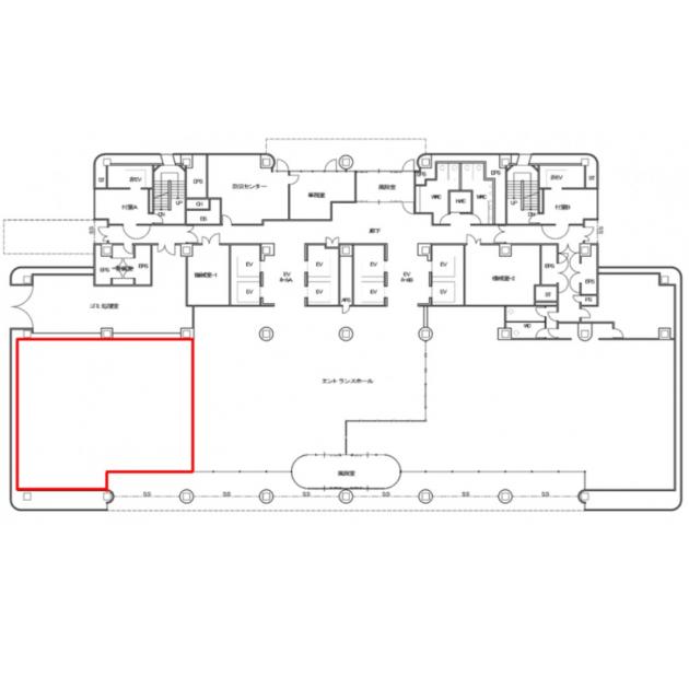
間取り図
おすすめポイント

- 旧大阪丸紅ビル。2015年に所有者変更となり、現在のビル名となりました。基準階面積は370坪を超える本町の大型シンボリックビルです。公開空地の造りや、高級感・開放感のあるエントランスなどハイグレードなオフィスビルであるということを感じさせます。
ストリートビューを表示 ▼
- この物件の賃料の価格帯(共益費込)
- この部屋は成約済みです
メットライフ本町スクエアのその他の募集階
賃料はこの物件の価格帯を表示しています。詳しい情報は電話・メールでお問い合わせください!
物件概要
| 物件名 | メットライフ本町スクエア | ||
|---|---|---|---|
| 住所 | 大阪府大阪市中央区本町2丁目5番7号 | ||
| 構造 (規模) | 鉄骨・鉄骨鉄筋コンクリート造地上19階地下3階建 | ||
| 坪数 | 62.42坪 | 築年月 | 1984年1月1日 |
| 階数 | 1階 | 空調タイプ | 個別 |
| 保証金 | - | ||
| 敷金 | - | 礼金 | - |
| 沿線・最寄駅 |
地下鉄堺筋線 堺筋本町駅 徒歩1分 (堺筋本町駅の賃貸事務所) 地下鉄中央線 堺筋本町駅 徒歩3分 (堺筋本町駅の賃貸事務所) 地下鉄御堂筋線 本町駅 徒歩4分 (本町駅の賃貸事務所) |
||
| 設備詳細 |
|
||
| EV基数 | 8基 | 人荷EV基数 | 2基 |
| こだわり条件 |
|
||
| 備考 | |||
| アクセス | 新大阪駅まで電車18分 大阪駅梅田駅まで電車12分 関西空港まで電車50分、車48分 伊丹空港まで車20分 高速入口:環状線高麗橋・信濃橋・阿波座入口 |
||
この物件の募集フロア
メットライフ本町スクエア
部屋の詳細動画
パノラマビュー
- この物件へのお問い合わせはこちら


〒541-0048
大阪市中央区瓦町3丁目4番3号
瓦町公洋ビル6階
TEL:06-6231-4600
FAX:06-6231-4630
- 電話で取り急ぎ物件情報を聞く

- 物件コード:A111211
- 物件コードを電話でお伝えください
類似物件のご紹介
「メットライフ本町スクエア」とエリア、賃料、広さが類似した物件をご紹介しております。
BEARE本町BLDG.(旧Hommachi bldg)
- 大阪府大阪市中央区本町2丁目6番5号
- 73.63坪(243.40m²)
- @15,001円/坪
~@20,000円/坪 -
地下鉄御堂筋線 本町駅 徒歩5分
地下鉄四つ橋線 本町駅 徒歩5分
西天満第11松屋
- 大阪府大阪市北区西天満1丁目10番8号
- 53.69坪(177.49m²)
- @15,001円/坪
~@20,000円/坪 -
京阪線(本線・中之島線) なにわ橋駅 徒歩4分
地下鉄谷町線 南森町駅 徒歩7分
天王寺ガーデンスクエア
- 大阪府大阪市天王寺区堀越町11番11号
- 58.44坪(193.19m²)
- @15,001円/坪
~@20,000円/坪 -
地下鉄谷町線 天王寺駅 徒歩1分
地下鉄御堂筋線 天王寺駅 徒歩4分
堺筋本町センター
- 大阪府大阪市中央区本町2丁目1番6号
- 60.43坪(199.77m²)
- @15,001円/坪
~@20,000円/坪 -
地下鉄堺筋線 堺筋本町駅 徒歩1分
地下鉄中央線 堺筋本町駅 徒歩3分






