道修町後藤/8階 37坪 物件コード:A105203
- 電話で取り急ぎ物件情報を聞く
- 0120-366-200
- 物件コードを電話でお伝えください
物件コード:A105203


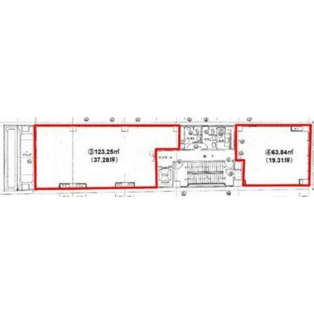
間取り図
おすすめポイント

- 道修町後藤は平成築の新耐震基準のオフィスビルです。大阪メトロ堺筋線・御堂筋線、京阪線の3線利用可能でアクセス至便。駅近で20~50坪程度の手ごろな大きさの区画を揃えており、支店開設や新たな営業拠点としておススメです。ワンフロアー2テナントなので使い勝手がいいところも魅力的です。
ストリートビューを表示 ▼
- この物件の賃料の価格帯(共益費込)
- 相談
道修町後藤のその他の募集階
賃料はこの物件の価格帯を表示しています。詳しい情報は電話・メールでお問い合わせください!
物件概要
| 物件名 | 道修町後藤 | ||
|---|---|---|---|
| 住所 | 大阪府大阪市中央区道修町2丁目2番6号
淀屋橋・北浜でよく検索されるその他の物件 |
||
| 構造 (規模) | 鉄骨鉄筋コンクリート造地上9階地下1階建 | ||
| 坪数 | 37坪 | 築年月 | 1989年2月28日 |
| 階数 | 8階 | 空調タイプ | 個別 |
| 保証金 | 相談 | ||
| 敷金 | - | 礼金 | - |
| 沿線・最寄駅 |
地下鉄堺筋線 北浜駅 徒歩2分 (北浜駅の賃貸事務所) 京阪線(本線・中之島線) 北浜駅 徒歩5分 (北浜駅の賃貸事務所) 地下鉄御堂筋線 淀屋橋駅 徒歩6分 (淀屋橋駅の賃貸事務所) |
||
| 設備詳細 |
|
||
| EV基数 | 1基 | 人荷EV基数 | - |
| こだわり条件 |
|
||
| 備考 | ・駅近・新耐震基準適合 | ||
| アクセス | 新大阪駅まで電車16分 大阪駅梅田駅まで電車9分 関西空港まで電車52分、車47分 伊丹空港まで車24分 高速入口:環状線高麗橋入口 |
||
- この物件へのお問い合わせはこちら


〒541-0048
大阪市中央区瓦町3丁目4番3号
瓦町公洋ビル6階
TEL:06-6231-4600
FAX:06-6231-4630
- 電話で取り急ぎ物件情報を聞く

- 物件コード:A105203
- 物件コードを電話でお伝えください
類似物件のご紹介
「道修町後藤」とエリア、賃料、広さが類似した物件をご紹介しております。
大明(たいめい)
- 大阪府大阪市中央区平野町4丁目6番3号
- 43.49坪(143.77m²)
- @8,001円/坪
~@12,000円/坪 -
地下鉄御堂筋線 淀屋橋駅 徒歩5分
地下鉄四つ橋線 肥後橋駅 徒歩5分
谷ビルディング
- 大阪府大阪市中央区伏見町2丁目2番10号
- 29.62坪(97.92m²)
- @3,000円/坪
~@8,000円/坪 -
地下鉄堺筋線 北浜駅 徒歩1分
京阪線(本線・中之島線) 北浜駅 徒歩3分
ZELKOVA QUATTRO
- 大阪府大阪市中央区淡路町3丁目2番13号
- 40坪(132.23m²)
- @8,001円/坪
~@12,000円/坪 -
地下鉄御堂筋線 本町駅 徒歩5分
地下鉄御堂筋線 淀屋橋駅 徒歩6分
グロース北浜ビルディング(旧今川)
- 大阪府大阪市中央区今橋2丁目2番17号
- 40.36坪(133.42m²)
- @12,001円/坪
~@15,000円/坪 -
地下鉄堺筋線 北浜駅 徒歩2分
京阪線(本線・中之島線) 北浜駅 徒歩2分






