EDGE江坂(旧ビーロット江坂)/地下2階 286.85坪 物件コード:I106012
- 電話で取り急ぎ物件情報を聞く
- 0120-366-200
- 物件コードを電話でお伝えください
物件コード:I106012


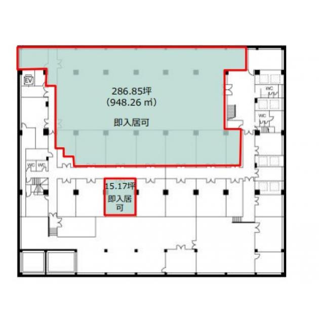
間取り図
おすすめポイント

- 江坂駅前の大型ランドマークオフィス。広々としたエントランスが開放感満載。上層階のロケーションは梅田方面まで見渡せるパノラマビューです。
ストリートビューを表示 ▼
- この物件の賃料の価格帯(共益費込)
- この部屋は成約済みです
EDGE江坂(旧ビーロット江坂)のその他の募集階
賃料はこの物件の価格帯を表示しています。詳しい情報は電話・メールでお問い合わせください!
物件概要
| 物件名 | EDGE江坂(旧ビーロット江坂) | ||
|---|---|---|---|
| 住所 | 大阪府吹田市豊津町9番1号 | ||
| 構造 (規模) | 鉄筋コンクリート・鉄骨鉄筋コンクリート造地上20階地下2階建 | ||
| 坪数 | 286.85坪 | 築年月 | 1975年2月1日 |
| 階数 | 地下2階 | 空調タイプ | 集中+個別 |
| 保証金 | - | ||
| 敷金 | - | 礼金 | - |
| 沿線・最寄駅 |
地下鉄御堂筋線 江坂駅 徒歩1分 (江坂駅の賃貸事務所) |
||
| 設備詳細 |
|
||
| EV基数 | 8基 | 人荷EV基数 | 1基 |
| こだわり条件 |
|
||
| 備考 | |||
| アクセス | 新大阪駅まで電車7分 大阪駅梅田駅まで電車13分 関西空港まで電車65分、車55分 伊丹空港まで車13分 高速入口:豊中・豊中南入口 |
||
この物件の募集フロア
EDGE江坂(旧ビーロット江坂)
- この物件へのお問い合わせはこちら


〒541-0048
大阪市中央区瓦町3丁目4番3号
瓦町公洋ビル6階
TEL:06-6231-4600
FAX:06-6231-4630
- 電話で取り急ぎ物件情報を聞く

- 物件コード:I106012
- 物件コードを電話でお伝えください
類似物件のご紹介
「EDGE江坂(旧ビーロット江坂)」とエリア、賃料、広さが類似した物件をご紹介しております。






