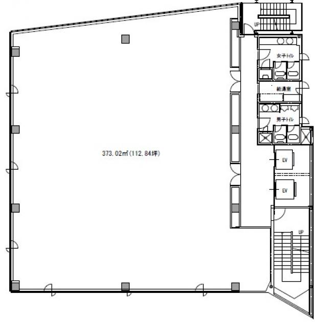
八光ビル玉造/8階 112.84坪 物件コード:G109001
- 電話で取り急ぎ物件情報を聞く
- 0120-366-200
- 物件コードを電話でお伝えください
物件コード:G109001
ストリートビューを表示 ▼
- この物件の賃料の価格帯(共益費込)
- @8,001円/坪~@12,000円/坪
八光ビル玉造のその他の募集階
|
|
賃料はこの物件の価格帯を表示しています。詳しい情報は電話・メールでお問い合わせください!
物件概要
| 物件名 | 八光ビル玉造 | ||
|---|---|---|---|
| 住所 | 大阪府大阪市天王寺区玉造元町3番9号
天満橋・谷町でよく検索されるその他の物件 |
||
| 構造 (規模) | 鉄骨鉄筋コンクリート造地上8階建 | ||
| 坪数 | 112.84坪 | 築年月 | 1995年2月1日 |
| 階数 | 8階 | 空調タイプ | 個別 |
| 保証金 | 総額10,720,800円(@80,000円/坪) | ||
| 敷金 | - | 礼金 | - |
| 沿線・最寄駅 |
JR大阪環状線 玉造駅 徒歩1分 (玉造駅の賃貸事務所) 地下鉄長堀鶴見緑地線 玉造駅 徒歩1分 (玉造駅の賃貸事務所) 地下鉄千日前線 鶴橋駅 徒歩9分 (鶴橋駅の賃貸事務所) |
||
| 設備詳細 |
|
||
| EV基数 | 2基 | 人荷EV基数 | - |
| こだわり条件 |
|
||
| 備考 | |||
| アクセス | 新大阪駅まで電車24分 大阪駅梅田駅まで電車18分 関西空港まで電車50分、車45分 伊丹空港まで車20分 高速入口:高津・夕陽丘入口 |
||
この物件の募集フロア
八光ビル玉造
- この物件へのお問い合わせはこちら


〒541-0048
大阪市中央区瓦町3丁目4番3号
瓦町公洋ビル6階
TEL:06-6231-4600
FAX:06-6231-4630
- 電話で取り急ぎ物件情報を聞く

- 物件コード:G109001
- 物件コードを電話でお伝えください
類似物件のご紹介
「八光ビル玉造」とエリア、賃料、広さが類似した物件をご紹介しております。









