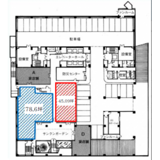
新大阪第一生命/地下1階 45.09坪 物件コード:D201306
- 電話で取り急ぎ物件情報を聞く
- 0120-366-200
- 物件コードを電話でお伝えください
物件コード:D201306


間取り図
おすすめポイント

- 大阪メトロ御堂筋線「新大阪駅」徒歩5分の好立地ビル。センターコア形状で北と南で各々約250坪、計約500坪の新大阪北側宮原エリアを代表するランドマークオフィスのひとつです。大型ビルでありながら、最小30坪台から貸室のご用意があり幅広い面積ニーズに対応しております。貸会議室や機械式と平面駐車場が完備されています。
ストリートビューを表示 ▼
- この物件の賃料の価格帯(共益費込)
- 相談
新大阪第一生命のその他の募集階
賃料はこの物件の価格帯を表示しています。詳しい情報は電話・メールでお問い合わせください!
物件概要
| 物件名 | 新大阪第一生命 | ||
|---|---|---|---|
| 住所 | 大阪府大阪市淀川区宮原3丁目5番24号
新大阪・西中島でよく検索されるその他の物件 |
||
| 構造 (規模) | 鉄骨鉄筋コンクリート造地上14階地下2階建 | ||
| 坪数 | 45.09坪 | 築年月 | 1986年11月1日 |
| 階数 | 地下1階 | 空調タイプ | 集中 |
| 保証金 | - | ||
| 敷金 | 相談 | 礼金 | - |
| 沿線・最寄駅 |
地下鉄御堂筋線 新大阪駅 徒歩5分 (新大阪駅の賃貸事務所) JR東海道本線 新大阪駅 徒歩8分 (新大阪駅の賃貸事務所) |
||
| 設備詳細 |
|
||
| EV基数 | 6基 | 人荷EV基数 | 2基 |
| こだわり条件 |
|
||
| 備考 | ・駅近・大通り沿い ・新耐震基準適合・貸会議室有り ・ランチ営業の飲食店有り・駐輪場有り |
||
| アクセス | 新大阪駅まで電車2分 大阪駅梅田駅まで電車7分 関西空港まで電車64分、車50分 伊丹空港まで車20分 高速入口:11号線加島入口 |
||
この物件の募集フロア
新大阪第一生命
- この物件へのお問い合わせはこちら


〒541-0048
大阪市中央区瓦町3丁目4番3号
瓦町公洋ビル6階
TEL:06-6231-4600
FAX:06-6231-4630
- 電話で取り急ぎ物件情報を聞く

- 物件コード:D201306
- 物件コードを電話でお伝えください
類似物件のご紹介
「新大阪第一生命」とエリア、賃料、広さが類似した物件をご紹介しております。
三好第2
- 大阪府大阪市淀川区西中島3丁目16番6号
- 36.67坪(121.22m²)
- @8,001円/坪
~@12,000円/坪 -
地下鉄御堂筋線 西中島南方駅 徒歩1分
地下鉄御堂筋線 新大阪駅 徒歩8分
エス・ティ・エス
- 大阪府大阪市淀川区西中島5丁目12番8号
- 36.77坪(121.55m²)
- @8,001円/坪
~@12,000円/坪 -
地下鉄御堂筋線 西中島南方駅 徒歩3分
地下鉄御堂筋線 新大阪駅 徒歩7分
新大阪西浦
- 大阪府大阪市淀川区西宮原2丁目7番38号
- 50.85坪(168.10m²)
- @8,001円/坪
~@12,000円/坪 -
地下鉄御堂筋線 新大阪駅 徒歩8分
地下鉄御堂筋線 東三国駅 徒歩10分
新大阪太陽センター(TAIYOセンター)
- 大阪府大阪市淀川区西中島4丁目9番28号
- 41.5坪(137.19m²)
- @12,001円/坪
~@15,000円/坪 -
地下鉄御堂筋線 西中島南方駅 徒歩3分
地下鉄御堂筋線 新大阪駅 徒歩10分
新大阪第2ドイ
- 大阪府大阪市淀川区西中島2丁目14番6号
- 38.03坪(125.72m²)
- @12,001円/坪
~@15,000円/坪 -
地下鉄御堂筋線 西中島南方駅 徒歩3分
地下鉄御堂筋線 新大阪駅 徒歩10分






