第7新大阪/3階 8.2坪 物件コード:D101516
- 電話で取り急ぎ物件情報を聞く
- 0120-366-200
- 物件コードを電話でお伝えください
物件コード:D101516


おすすめポイント

- 大阪メトロ御堂筋線「西中島南方駅」、「新大阪駅」徒歩4分の立地に位置するビル。1985年築のビルですが2011年に共用部をリニューアルしていますので綺麗になったビルです。8坪~15坪ほどの貸室が主なビルです。貸会議室がありますので、会議をよくされるお客様におすすめです。
ストリートビューを表示 ▼
- この物件の賃料の価格帯(共益費込)
- @8,001円/坪~@12,000円/坪
第7新大阪のその他の募集階
賃料はこの物件の価格帯を表示しています。詳しい情報は電話・メールでお問い合わせください!
物件概要
| 物件名 | 第7新大阪 | ||
|---|---|---|---|
| 住所 | 大阪府大阪市淀川区西中島5丁目7番19号
新大阪・西中島でよく検索されるその他の物件 |
||
| 構造 (規模) | 鉄骨鉄筋コンクリート造地上10階建 | ||
| 坪数 | 8.2坪 | 築年月 | 1985年10月1日 |
| 階数 | 3階 | 空調タイプ | 個別 |
| 保証金 | - | ||
| 敷金 | 賃料の3カ月分 | 礼金 | - |
| 沿線・最寄駅 |
地下鉄御堂筋線 西中島南方駅 徒歩4分 (西中島南方駅の賃貸事務所) 地下鉄御堂筋線 新大阪駅 徒歩4分 (新大阪駅の賃貸事務所) JR東海道本線 新大阪駅 徒歩4分 (新大阪駅の賃貸事務所) |
||
| 設備詳細 |
|
||
| EV基数 | 2基 | 人荷EV基数 | - |
| こだわり条件 |
|
||
| 備考 | |||
| アクセス | 新大阪駅まで電車4分 大阪駅梅田駅まで電車7分 関西空港まで電車63分、車50分 伊丹空港まで車20分 高速入口:11号線加島入口 |
||
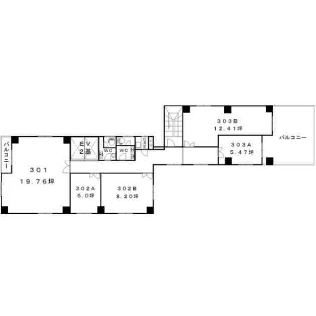
この物件の募集フロア
第7新大阪
- この物件へのお問い合わせはこちら


〒541-0048
大阪市中央区瓦町3丁目4番3号
瓦町公洋ビル6階
TEL:06-6231-4600
FAX:06-6231-4630
- 電話で取り急ぎ物件情報を聞く

- 物件コード:D101516
- 物件コードを電話でお伝えください
類似物件のご紹介
「第7新大阪」とエリア、賃料、広さが類似した物件をご紹介しております。
サムティフェイム新大阪1号館
- 大阪府大阪市淀川区西中島6丁目5番3号
- 9.65坪(31.90m²)
- @8,001円/坪
~@12,000円/坪 -
地下鉄御堂筋線 新大阪駅 徒歩5分
地下鉄御堂筋線 西中島南方駅 徒歩3分
新大阪駅前(旧新大阪サムティ)
- 大阪府大阪市東淀川区東中島2丁目8番6号
- 8.06坪(26.64m²)
- @8,001円/坪
~@12,000円/坪 -
地下鉄御堂筋線 新大阪駅 徒歩7分
地下鉄御堂筋線 西中島南方駅 徒歩6分
新大阪CSPビル本館
- 大阪府大阪市淀川区西中島1丁目11番16号
- 7.02坪(23.21m²)
- @8,001円/坪
~@12,000円/坪 -
地下鉄御堂筋線 西中島南方駅 徒歩1分
地下鉄御堂筋線 新大阪駅 徒歩9分
新大阪エクセル
- 大阪府大阪市淀川区宮原1丁目19番10号
- 8.31坪(27.47m²)
- @8,001円/坪
~@12,000円/坪 -
地下鉄御堂筋線 新大阪駅 徒歩2分
JR東海道本線 新大阪駅 徒歩2分
日宝新大阪第1
- 大阪府大阪市淀川区西中島4丁目7番20号
- 7.56坪(24.99m²)
- @8,001円/坪
~@12,000円/坪 -
地下鉄御堂筋線 西中島南方駅 徒歩3分
地下鉄御堂筋線 新大阪駅 徒歩7分






