第三東洋/3階 6.5坪 物件コード:C505229
- 電話で取り急ぎ物件情報を聞く
- 0120-366-200
- 物件コードを電話でお伝えください
物件コード:C505229


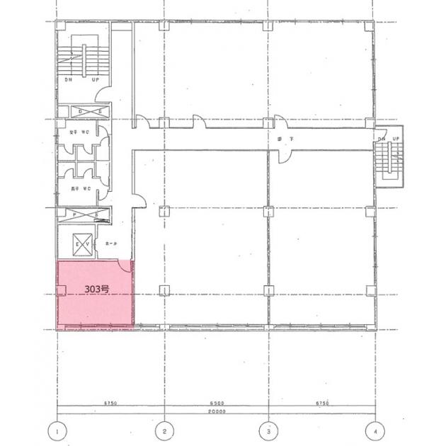
間取り図
おすすめポイント

- グランフロント大阪、リンクス梅田から少し歩いたところにあるオフィスビル。JR大阪駅や地下鉄・阪急の各梅田駅がすぐの立地なのに大通りから中に入るので落ち着いた周辺環境です。タイル張りの外観が特徴、窓面が広くとられ採光も十分期待できます。10坪以下から30坪台の分割が可能です。
ストリートビューを表示 ▼
- この物件の賃料の価格帯(共益費込)
- @12,001円/坪~@15,000円/坪
第三東洋のその他の募集階
|
|
賃料はこの物件の価格帯を表示しています。詳しい情報は電話・メールでお問い合わせください!
物件概要
| 物件名 | 第三東洋 | ||
|---|---|---|---|
| 住所 | 大阪府大阪市北区芝田2丁目8番31号
梅田でよく検索されるその他の物件 |
||
| 構造 (規模) | 鉄骨造地上6階地下1階 | ||
| 坪数 | 6.5坪 | 築年月 | 1979年1月1日 |
| 階数 | 3階 | 空調タイプ | 個別 |
| 保証金 | 総額2,694,000円(@120,000円/坪) | ||
| 敷金 | - | 礼金 | - |
| 沿線・最寄駅 |
JR東海道本線 大阪駅 徒歩5分 (大阪駅の賃貸事務所) 地下鉄御堂筋線 梅田駅 徒歩6分 (梅田駅の賃貸事務所) 地下鉄谷町線 東梅田駅 徒歩7分 (東梅田駅の賃貸事務所) |
||
| 設備詳細 |
|
||
| EV基数 | 1基 | 人荷EV基数 | - |
| こだわり条件 |
|
||
| 備考 | |||
| アクセス | 新大阪駅まで電車8分 大阪駅梅田駅まで電車5分 関西空港まで電車60分、車45分 伊丹空港まで車20分 高速入口:阪神高速環状線梅田入口 |
||
この物件の募集フロア
第三東洋
- この物件へのお問い合わせはこちら


〒541-0048
大阪市中央区瓦町3丁目4番3号
瓦町公洋ビル6階
TEL:06-6231-4600
FAX:06-6231-4630
- 電話で取り急ぎ物件情報を聞く

- 物件コード:C505229
- 物件コードを電話でお伝えください
類似物件のご紹介
「第三東洋」とエリア、賃料、広さが類似した物件をご紹介しております。






